Продам 2-комнатную квартиру
Одесса, р-н Приморский, Еврейская ул.
ID: 5304813
8 733 787 грн
(97 150 за м2)
Кол-во комнат
2
Этаж
3/8
Тип стен
кирпич
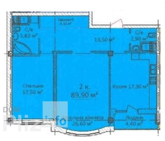
Общая площадь
89.9 м2
Жилая площадь
44.1 м2
Кухня площадь
17.3 м2
Состояние
жилое
Тип недвижимости
Вторичный рынок
Предлагается к продаже 2-комнатная квартира в новом элитном доме. Исторический центр города. Близость к парку Шевченко, пляжу Ланжерон, Дерибасовской, Стамбульскому парку и Приморскому бульвару. Квартира функциональной планировки. Гардеробная, балкон из кухни. Возможность объединения с соседней квартирой. Полностью автономный и независимый дом. Консьерж сервис. Идеальное жилье для тех, кто мечтает жить в центре Одессы. Посредникам, просьба не беспокоить.
Обновлено: 19.05.2026
8 733 787 грн
(97 150 за м2)
197 780 $
(2 200 за м2)
АН ПРЕМЬЕР Преображенская, 49/51
посредник
Обновлено: 19.05.2026
Просмотренные
Предлагается к продаже 2-х комнатная квартира в элитном коттеджном городке на Французском бульваре. Это комфорт, аристократичность и эстетика. Общая площадь 85 м2. Изысканная кухня-столовая площадью 18 м², прос...
19.05.2026
Комнат
2
Этаж:
1/4
Общая
84.7 м2
Жилая
48.4 м2
Кухня
17.6 м2
11 039 775 грн
Продам просторную двухкомнатную квартиру в новом сданном доме в Аркадии. Состояние от строителей. Свободная планировка позволит воплотить все идеи дизайнера! С высоты открывается изумительный вид. Приморский ра...
19.05.2026
Комнат
2
Этаж:
13/18
Общая
83 м2
Жилая
40 м2
Кухня
16 м2
5 740 683 грн
Предлагается к продаже двухкомнатная квартира общей площадью 80 м. в районе автовокзала. В квартире выполнен дизайнерский ремонт в минималистичном стиле. Две раздельные комнаты и просторная кухня 14 м. Индивиду...
19.05.2026
Комнат
2
Этаж:
9/9
Общая
80 м2
Жилая
45 м2
Кухня
14 м2
3 091 137 грн
Предлагается к продаже видовая 2-комнатная квартира в новом жилом комплексе бизнес-класса. Из окон потрясающие виды на море, парк Победы и парк Космонавтов, не закрываемые рядом стоящими домами. Функциональная ...
19.05.2026
Комнат
2
Этаж:
18/25
Общая
99.4 м2
Жилая
32.2 м2
Кухня
39.1 м2
4 415 910 грн
Популярное на сайте

ОдессаОдесса

КиевКиев










