Продам офисное помещение
Овидиопольский район, пгт. Таирово, 40-летия Победы ул.
ID: 5307254
2 197 845 грн
(5 170 за м2)
Этаж
1/5
Тип стен
кирпич
Общая площадь
425.1 м2
Состояние
жилое
Тип недвижимости
Офисное помещение
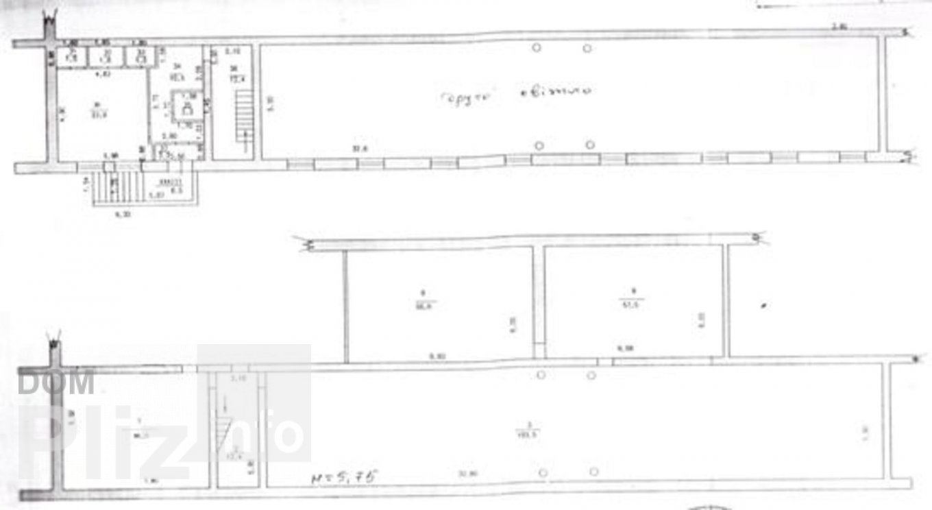
Продается в Одессе коммерческое предложение в пяти этажном кирпичном доме, цокольный этаж, общая площадь 425,10 м.кв., водопровод, высота потолков 3 м., можно под офис, спортивный зал, производство, сауну, склад, магазин. Металлическая дверь. Посредникам, просьба не беспокоить.
Обновлено: 17.05.2026
2 197 845 грн
(5 170 за м2)
50 000 $
(118 за м2)
АН Премьер Королева, 33
посредник
Обновлено: 17.05.2026
Просмотренные
Предлагается к продаже коммерческое помещение в современном торговом центре, расположенном на территории жилого комплекса «Розенталь». Общая площадь помещения составляет 28 м², что делает его удобным и функцион...
17.05.2026
Этаж:
2/2
Общая
27.54 м2
Жилая
18 м2
Кухня
5 м2
846 170 грн
Предлагается к продаже коммерческое помещение площадью 51,13 м², расположенное в торговом центре на территории современного жилого комплекса «Розенталь». Помещение находится в состоянии от строителей, что дает ...
17.05.2026
Этаж:
2/2
Общая
51.13 м2
1 571 459 грн
Предлагается к продаже коммерческое помещение в торговом центре на территории жилого комплекса ЖК Розенталь. Помещение расположено на 2 этаже двухэтажного здания. Общая площадь составляет 56 м², что позволяет у...
17.05.2026
Этаж:
2/2
Общая
55.91 м2
Жилая
40 м2
Кухня
10 м2
1 718 715 грн
Предлагается для продажи коммерческое помещение в жилом комплексе Розенталь. Объект расположен на удобном 2 этаже 2-этажного здания. Общая площадь – 30 м².Состояние – от застройщика, позволяющего обустроить про...
17.05.2026
Этаж:
2/2
Общая
30 м2
1 710 803 грн
Популярное на сайте

ОдессаОдесса

КиевКиев









