Продам офисное помещение
Киев, р-н Дарницкий, Чавдар Елизаветы ул., 1
ID: 5308561
10 353 720 грн
(75 575 за м2)
Кол-во помещений
1
Этаж
24/24
Тип стен
кирпич
Общая площадь
137 м2
Состояние
жилое
Тип недвижимости
Офисное помещение
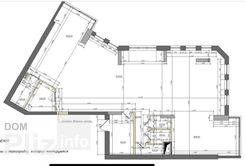
Пропонується на продаж видове офісне приміщення у нежитловому фонді у новому будинку.Станція метро Осокорки 4 хв.Вулиця Єлизавети Чавдар, 124 поверх/24.Площа: 136.5 м2.Офіс повністю мебльований.Open-space, серверна, кухня, підсобне приміщення, два санвузли.Система кондиціювання та вентиляції.Охорона.Зручне транспортне сполучення.Розвинута інфраструктура.Ціна: 240000$
Создано : 06.02.2026
10 353 720 грн
(75 575 за м2)
240 000 $
(1 752 за м2)
АН "Лівий Берег"
посредник
Создано : 06.02.2026
Просмотренные
Продаётся офис помещение. Дарницкий район, улица Бориспольская, 26, метро Красный хуторПродажа офисного помещения по улице Бориспольской, 26. - Первый этаж- Отдельная входная группа- Нежилой фонд- Кабинетная пл...
06.02.2026
Этаж:
1/16
Общая
115 м2
3 882 645 грн
Продается помещение по улице Дьяченко, 20 Б, Дарницкий район, массив Бортничи.Тип планировки : свободная.Назначение: под кофейню, пекарню, почтовое, банковское отделение.Помещение имеет 2 входа, внутреннее и вн...
06.02.2026
Этаж:
1/8
Общая
100 м2
4 314 050 грн
Продажа VIP офиса на Осокорках по адресу Днепровская набережная. Этаж 2/5 этажного нежилого здания. Офис с эксклюзивным интерьером от дизайн-студии YoDezeen.Общая площадь офиса 245 м2. Нежилой фонд. Фотографии ...
05.02.2026
Этаж:
2/5
Общая
250 м2
32 355 375 грн
Продажа просторного офиса на Позняках по адресу улица Александа Мишуги. Этаж 3/23 этажного здания. Общая площадь офиса 443.2 м2. Фотографии и планировка соответствуют реальности. Планировка - рабочие зоны + каб...
05.02.2026
Этаж:
3/23
Общая
450 м2
28 041 325 грн
Популярное на сайте

ОдессаОдесса

КиевКиев









