Продам 1-комнатную квартиру
Киев, р-н Голосеевский, Михайла Максимовича вул. (Онуфрія Трутенка), 24А
ID: 5308762
2 329 587 грн
(80 331 за м2)
Кол-во комнат
1
Этаж
6/21
Тип стен
кирпич
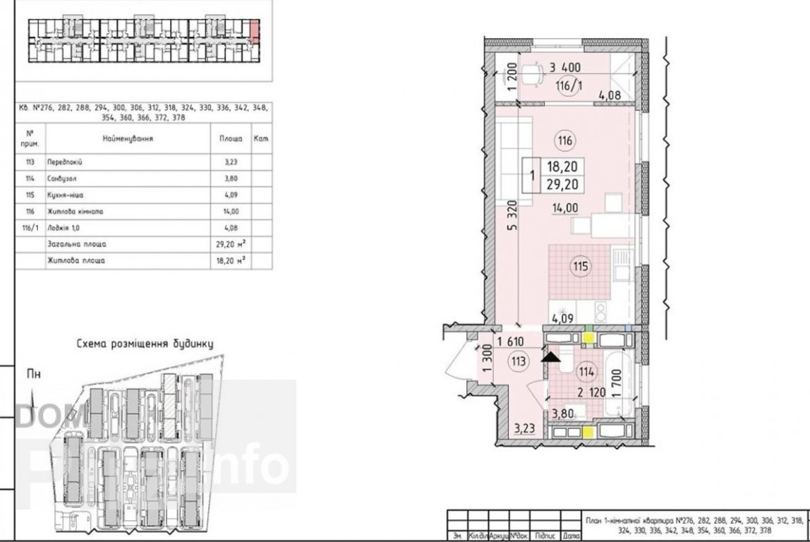
Общая площадь
29 м2
Жилая площадь
18 м2
Кухня площадь
4 м2
Состояние
жилое
Тип недвижимости
Вторичный рынок
1-кімнатна квартира, Михайла Максимовича вул. (Онуфрія Трутенка), 24А, Голосіївський район. Метраж 6/21, поверховість 6/21. ЖК Нова Англія Продаж 1 кімн квартиру- студію, 29, 5 КВ м, 6/21, будинок введен в експлуатацію, Ноттінгем, готова до ремонту, вид на Київ. Індивідуальне опалення, своя котельня, стан після будівельників, підземний паркінг. Переваги комплексу: Закрита територія з охороною і відеоспостереження. Власна інфрастуктура: магазини, кавярні, аптеки, ресторан, відділення банку, пошла, супермаркет, зони відпочинку, школа та садок 10 хвилин пішки, до Метро Васильківська 15 хвилин пішки, укриття в підземному паркінгу. Спеціаліст Ольга +XXXXXXXXXXXX
Создано : 06.02.2026
2 329 587 грн
(80 331 за м2)
54 000 $
(1 862 за м2)
АН КУБ
посредник
Создано : 06.02.2026
Просмотренные
1-кімнатна квартира, Горіхуватський шлях вул. (Генерала Родимцева), 3а, Голосіївський район. Метраж 29/15/7, поверховість 2/5. Продам 1к біля Голосіївського парку. Квартира повністю умебльована зі всією необхі...
06.02.2026
Комнат
1
Этаж:
2/5
Общая
29 м2
Жилая
15 м2
Кухня
7 м2
1 941 323 грн
1-кімнатна квартира, Дергуса, 42, Голосіївський район. Метраж 23/14/5, поверховість 1/4. ЖК Parkland метро Васильківська. ВСІ ДЕРЖПРОГРАМИ. Продам квартиру в житловому комплексі ParkLand, 1 кімнатна студія, 22,...
06.02.2026
Комнат
1
Этаж:
1/4
Общая
23 м2
Жилая
14 м2
Кухня
5 м2
2 006 033 грн
1-кімнатна квартира, Юлії Здановської вул. (Михайла Ломоносова), 24, Голосіївський. Метраж 39/18/8, поверховість 3/12. Продаж 1к квартири. Голосіївській р-н, М. Васильківська. Продається 1 кімнатна квартира , в...
06.02.2026
Комнат
1
Этаж:
3/12
Общая
39 м2
Жилая
25 м2
Кухня
8 м2
3 019 835 грн
1-кімнатна квартира, просп. Європейського Союзу(Правди), 41Д, Подільський район. Метраж 39/18/11, поверховість 11/25. Продається 1-кімнатна квартира в ЖК «Варшавський» V квартал (дуже теплий) Будинок з зовнішні...
06.02.2026
Комнат
1
Этаж:
11/25
Общая
39 м2
Жилая
18 м2
Кухня
11 м2
3 990 496 грн
Популярное на сайте

ОдессаОдесса

КиевКиев











