Продам 2-комнатную квартиру
Кременчуг
ID: 5309561
3 235 538 грн
(66 031 за м2)
Кол-во комнат
2
Этаж
2/9
Тип стен
кирпич
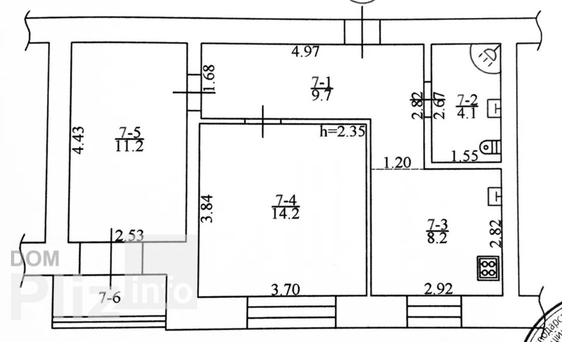
Общая площадь
49 м2
Кухня площадь
8 м2
Состояние
жилое
Тип недвижимости
Вторичный рынок
Пропоную у продаж затишну квартиру з якісним ремонтом в нагорній частині міста. Зручно перепланована, є достатньо велика кухня, затишна зала і спальня. В оздобленні використані якісні матеріали, виконаний високоякісний сучасний ремонт. Все продумано для затишного та комфортного проживання. В квартирі повністю замінена: - сантехніка з виводом під бойлер та посудомийну машину; - електрика та водний кабель; - труби опалення та радіатори; - підлога: спальня/зала - ламінат; кухняu/ванна кімната/коридорu, лоджія - плитка з керамограниту. В квартирі встановлені: - душова кабіна; - сучасні міжкімнатні двері; - пластикові 2-х камерні вікна (з функцією захисту від дитини); - прохідні вимикачі для комфорту, WiFi роутер та домофон; - електрична тепла підлога на кухні; - вбудовані шафи в коридорі та спальні; - карнизи зі шторами; - виходи під монтаж кондиціонерів; - двоспальне ліжко з ортопедичним матрацом; - підвісна сушка для білизни на лоджії. Додатково зроблено зовнішнє утеплення, квартира дуже тепла. В будинку встановлений індивідуальний лічильник тепла, що дає можливість платити менше за опалення. Вікна квартири виходять на соснові дерева та ранкове сонце. Це ідеальний простір для життя. Поруч три дитячі садочки, один з яких знаходиться у дворі, школа за 5 хвилин ходьби, декілька продуктових магазинів, відділення Нової пошти та банку. Неподалік знаходиться зупинка міського транспорту, адже до зупинки Водоканал менше 7 хвилин, а до зупинки 18 маршруту можна дійти за 5 хвилин. Комфортний та затишний двір з дитячими ігровими майданчиками, а якщо ви бажаєте займатися спортом, то поруч є стадіон та спортивні тренажери.. Вид обєкта: Вторинний ринок;Тип будинку: Житловий фонд 80-90-і;Тип стін: Цегляний;Клас житла: Комфорт;Планування: Роздільна;Cанвузол: Суміжний;Опалення: Централізоване;Ремонт: Євроремонт;Меблювання: Так;Побутова техніка: Холодильник, Варильна панель, Мікрохвильова піч, Духова шафа, Пральна машина;Мультимедіа: Кабельне, цифрове ТБ, Швидкісний інтернет, Wi-Fi;Комфорт: Балкон, лоджія, Ліфт, Підігрів підлоги, Душова кабіна, Сигналізація, Госп. приміщення, комора;Комунікації: Асфальтована дорога, Центральна каналізація, Електрика, Вивіз відходів, Газ, Центральний водопровід;Інфраструктура (до 500 метрів): Відділення банку, банкомат, Аптека, Дитячий садок, Парк, зелена зона, Дитячий майданчик, Відділення пошти, Школа, Магазин, кіоск, Зупинка транспорту;Ландшафт (до 1 км.): Парк;
Создано : 06.02.2026
3 235 538 грн
(66 031 за м2)
75 000 $
(1 531 за м2)
Юлія
посредник
Создано : 06.02.2026
Просмотренные
Продам 2х ком. квартиру. Проводка поменяна, все счётчики, после ремонта , можно заезжать и жить! Вся мебель и техника остаются.Дом кирпичный,4х этажный дом, теплый, квартира на 4 этаже угловая, но утеплен фасад...
06.02.2026
Комнат
2
Этаж:
4/4
Общая
45 м2
Кухня
6 м2
1 256 000 грн
Продаж двокімнатної квартири ,крюків напроти зупинки стадіон. 2 поверх, показ по домовленості, власник. Всі деталі за телефоном.документи готові.. Вид обєкта: Вторинний ринок;Тип будинку: Хрущовка;Тип стін: Цег...
06.02.2026
Комнат
2
Этаж:
2/5
Общая
45 м2
Кухня
7 м2
884 380 грн
Двокімнатна квартира. Квартал 297..Двокімнатна квартира площею 52.5 м2. Новий лінолеум, новий бойлер, нова витяжка, встроєна кухня, пластикові вікна, балкон 6м. Кухня 8 м2, зовні утеплена. Лічільники на воду і ...
06.02.2026
Комнат
2
Этаж:
1/10
Общая
52 м2
Кухня
8 м2
1 207 934 грн
2-х кімнатна квартира вже готова до вашого облаштування!. Продаж квартири! 2 просторі кімнати площею 13,3 кв2 та 16,5 кв2. З великим балконом. Кременчук, вул. Івана Приходька. До центра міста 7 хвилин на авто. ...
06.02.2026
Комнат
2
Этаж:
5/5
Общая
45 м2
Кухня
5 м2
1 294 215 грн
Популярное на сайте

ОдессаОдесса

КиевКиев





















