Сдам долгосрочно офисное помещение
Киев, р-н Подольский, Ільїнська
ID: 5309844
645 грн
Этаж
5/6
Тип стен
кирпич
Общая площадь
425 м2
Состояние
жилое
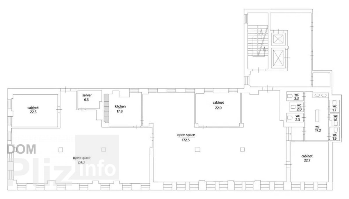
Офіс 425 кв.м. (5 поверх) в сучасному бізнес центрі на Подолі в пішій доступності дві станції метро Контрактова площа 3 хв, Поштова площа 5-7 хв. Планування офісу - комбіноване. Офіс після ремонту. Інфраструктура бізнес центру: ресторан, кафе, підземний та наземний паркінг. Є безперебійне електро забезпечення (встановлено декілька потужних генераторів) та сертифіковане укриття. Вартість оренди - 15 дол/м2 з ПДВ. Окремо сплачуються експлуатаційні та комунальні послуги. Пропозиція без комісії для орендаря.
Создано : 10.02.2026
645 грн
15 $
Віктор
посредник
Создано : 10.02.2026
Просмотренные
Аренда просторного офиса в Бизнес Центре класса " В " по адресу проспект Степана Бандеры. Этаж 2/7 этажного нежилого здания. Общая площадь офиса 420.31 Фотографии и планировка соответствуют реальности. Планиров...
05.02.2026
Этаж:
2/7
Общая
420 м2
180 712 грн
Аренда просторного офиса в центре Киева в Бизнес Центре класса " В + " по адресу улица Ильинская. Этаж 5/6 этажного нежилого здания. Полезная площадь офиса 375.4 м2. Арендуемая площадь 431.71 м2 ( 15 % коэффици...
05.02.2026
Этаж:
5/6
Общая
430 м2
318 398 грн
Аренда просторного офиса в Бизнес Центре класса " В " по адресу проспект Степана Бандеры. Этаж 2/7 этажного нежилого здания. Общая площадь офиса 415.69 Фотографии и планировка соответствуют реальности. Планиров...
05.02.2026
Этаж:
2/7
Общая
420 м2
180 712 грн
БЕЗ КОМИССИИ! Аренда офиса 425 м2 в Бизнес центре на Подоле. Помещение расположено на 5-м этаже. Планировка: 8 кабинетов, кухня, серверная, 4 с/у. Ремонт: пол - плитка и ковролин, стены - гипсокартон с обоями п...
11.02.2022
Этаж:
5/6
Общая
425 м2
366 157 грн
Популярное на сайте

ОдессаОдесса

КиевКиев















