Сдам долгосрочно офисное помещение
Киев, р-н Голосеевский, Сімї Прахових
ID: 5310161
645 грн
Этаж
5/7
Тип стен
кирпич
Общая площадь
961 м2
Состояние
жилое
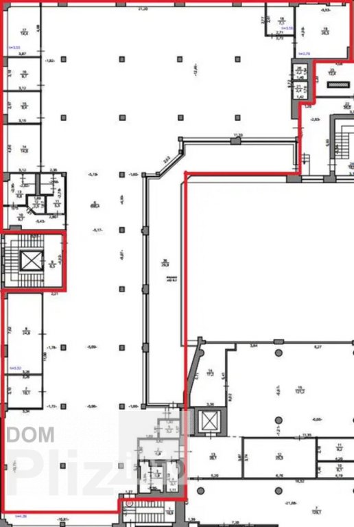
Оренда офісу з терасою та меблями в центрі Києва Бізнес Центр з ГЕНЕРАТОРОМ в пішій доступності три станці метро Вокзальна, Університет, Олімпійська. Площа офісу фактична 813 м2 з коєфіцієнтом місць загального користування і терасою 961 м2. 5-й поверх. Планування - комбінована система : 2 великих openspace, 1 велика переговорна кімната, 5 кабінетів, кухня, 4 с/в та душова, 2 входи, серверна. Офіс здається з сучасними офісними меблями. Індивідуальні системи кондиціювання та вентиляції, центральне опалення, індивідуальна система пожежної сигналізації, інтернет – оптоволоконний кабель, власна серверна, система контролю доступу (ACS), внутрішня система відеоспостереження. Зручна транспортна розвязка. Поруч SportLife, безліч ресторанів, кафе, магазинів та інших закладів. Вартість оренди 15$/м2+5,5 $/м ОРЕХ+ ПДВ.
Создано : 12.02.2026
645 грн
15 $
Віктор
посредник
Создано : 12.02.2026
Просмотренные
Оренда офісу з терасою та меблями в центрі Києва Бізнес Центр з ГЕНЕРАТОРОМ в пішій доступності три станці метро Вокзальна, Університет, Олімпійська. Площа офісу фактична 650 м2 з коєфіцієнтом місць загального ...
12.02.2026
Этаж:
2/5
Общая
728 м2
861 грн
Оренда офісного приміщення в бізнес-центрі в діловому центрі міста, в пішій доступності три станції метро Вокзальна, Університет, Олімпійська. Площа офісу - 1488,14 м2 з терасою. 8-й поверх. Планування : комбін...
12.02.2026
Этаж:
8/9
Общая
1488 м2
947 грн
Оренда офісу з терасою та меблями в центрі Києва Бізнес Центр з ГЕНЕРАТОРОМ в пішій доступності три станці метро Вокзальна, Університет, Олімпійська. Площа офісу фактична 813 м2 з коєфіцієнтом місць загального ...
12.02.2026
Этаж:
5/6
Общая
944 м2
645 грн
Аренда просторного офиса в Бизнес Центре класса " В + " по адресу улица Николая Гринченко. Этаж 1/5 этажного нежилого здания. Полезная площадь офиса 576.79 м2. Арендуемая площадь 634.47 м2 ( 10 % коэффициент BO...
12.02.2026
Этаж:
1/5
Общая
640 м2
490 563 грн
Популярное на сайте

ОдессаОдесса

КиевКиев


















