Сдам долгосрочно офисное помещение
Киев, р-н Печерский, Лесі Українки бульвар
ID: 5310248
500 грн
Этаж
8/9
Тип стен
кирпич
Общая площадь
380 м2
Состояние
жилое
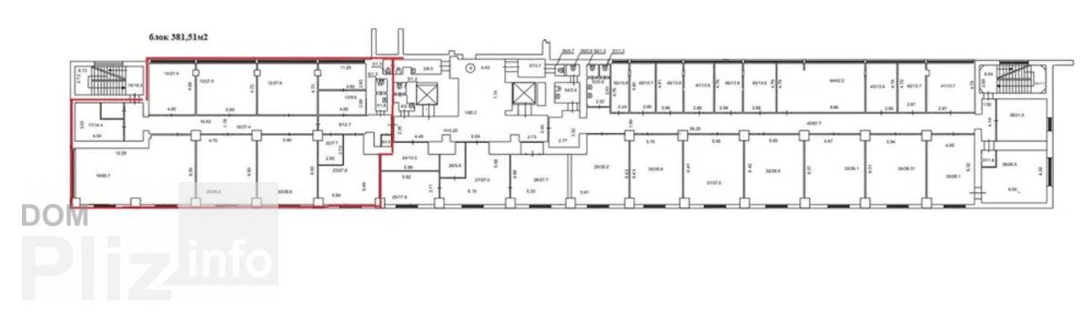
Оренда офісу на Печерську площею 300м2 в БЦ класу Б, Пропонуємо в оренду офісне приміщення площею 380м2 на 9 поверсі БЦ. Бізнес-центр L26 класифікується як клас B та розташований у хвилинах ходьби від станціі метро Печерська. Офіс після ремонту, всі комунікації нові. Вартість оренди - 500 грн/м2.
Создано : 13.02.2026
500 грн
12 $
Віктор
посредник
Создано : 13.02.2026
Просмотренные
Пропонується в оренду офіс на Печерську площею 373,7м2, на 2 поверсі в Бізнес Центрі L34, що знаходиться за адресою бульвар Лесі Українки, 34. БЦ Знаходиться між станціями м. Печерська та м. Дружби народів. За ...
13.02.2026
Этаж:
2/7
Общая
373 м2
550 грн
Аренда просторного офиса в центре Киева в Бизнес Центре класса " В " по адресу Железнодорожное шоссе. Этаж 4/5 этажного нежилого здания. Общая площадь офиса 377.3 м2. Фотографии и планировка соответствуют реаль...
12.02.2026
Этаж:
4/5
Общая
380 м2
197 768 грн
Печерськ, станція метро Звіринецька, бульвар Міхновського. Офіс площа 388 м2, з урахуванням коридорного коеф-ту. Кабінетна система. Знаходиться в оточенні офісів великих міжнародних та вітчизняних корпорацій, н...
07.02.2026
Этаж:
7/12
Общая
388 м2
559 грн
Аренда просторного офиса в центре Киева в Бизнес Центре класса " В " по адресу Бульвар Леси Украинки. Этаж 9/9 этажного нежилого здания. Общая площадь офиса 385 м2. Фотографии и планировка соответствуют реально...
05.02.2026
Этаж:
9/9
Общая
390 м2
231 000 грн
Популярное на сайте

ОдессаОдесса

КиевКиев












