Сдам долгосрочно офисное помещение
Киев, р-н Печерский, Крестовый пер., 2
ID: 5310645
345 665 грн
Кол-во помещений
4
Этаж
9/10
Тип стен
кирпич
Общая площадь
420 м2
Состояние
жилое
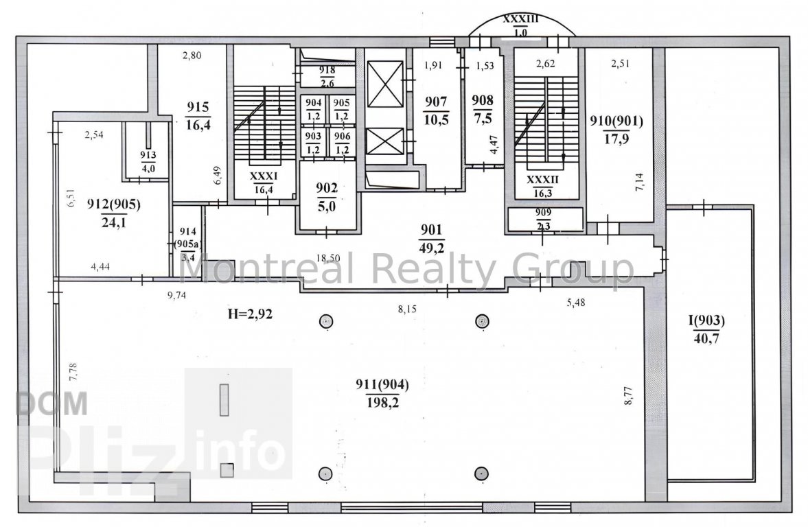
Аренда просторного офиса в центре Киева в Бизнес Центре класса " В " по адресу Крестовый переулок. Этаж 9/10 этажного нежилого здания. Общая площадь офиса 420 м2. Фотографии и планировка соответствуют реальности. Планировка - open space + кабинеты/переговорные, кухня, санузлы, серверная. Состояния - современный ремонт. Офис оснащен всем необходимым для комфортной и безопасной работы. Отличная транспортная развязка, в пешей доступности остановка общественного транспорта и станции метро Арсенальная и Кловская 5 минут пешком.Оснащения Бизнес Центра:1. Система приточно-вытяжной вентиляции.2. Система кондиционирования.3. Оптоволоконные линии связи.4. Система контроля доступа.5. Противопожарная система безопасности.6. Круглосуточная физическая охрана.7. Видеонаблюдение (периметр, холл, лифты, место общего пользования, парковка).8. Лифты - 2 шт., фирмы OTIS.9. Наземная парковка.Коммерческие условия:Арендная ставка - 19 $/м2 с эксплуатации + НДС + коммунальные услуги.Номер оголошення на сайті компанії: RC-122-683-DP.
Создано : 17.02.2026
345 665 грн
8 000 $
Радион Попов
посредник
Создано : 17.02.2026
Просмотренные
Аренда стильного офиса в центре Киева по адресу улица Большая Васильковская. Этаж 2/5 этажного здания. Общая площадь офиса 420 м2 + 60 м2 терраса. Фотографии и планировка соответствуют реальности. Планировка - ...
17.02.2026
Этаж:
2/5
Общая
420 м2
604 913 грн
Аренда офиса БЕЗ РЕМОНТА в центре Киева в Бизнес Центре класса " А + " по адресу улица Лавраская. Этаж 2/4 этажного нежилого здания. Общая площадь офиса 420 м2. Фотографии и планировка соответствуют реальности....
17.02.2026
Этаж:
2/4
Общая
420 м2
462 327 грн
Аренда просторного офиса в центре Киева в Бизнес Центре класса " А " по адресу улица Мечникова. Этаж 17/33 этажного нежилого здания. Полезная площадь офиса 350 м2. Арендуемая площадь 413 м2 ( 18 % коэффициент B...
17.02.2026
Этаж:
17/33
Общая
420 м2
535 780 грн
Оренда окремого офісного блоку з кухнею та с/в в діловому центрі міста на Печерську. Бульвар Л.Українки, зручне розташування, поруч дві станції метро Печерська, Звіринецька. Площа 430 м2, на пятому поверсі. В б...
11.02.2026
Этаж:
5/7
Общая
430 м2
600 грн
Популярное на сайте

ОдессаОдесса

КиевКиев















