Продам офисное помещение
Киев, р-н Печерский, Грушевского Михаила ул., 9Б
ID: 5310652
391 162 929 грн
(325 969 за м2)
Кол-во помещений
20
Этаж
6/12
Тип стен
кирпич
Общая площадь
1200 м2
Состояние
жилое
Тип недвижимости
Офисное помещение
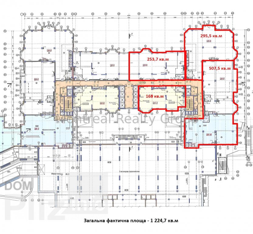
Продажа просторного офиса в центре Киева в Бизнес Центре класса " А " по адресу улица Михаила Грушевского. Этаж 6/12 этажного здания. Половина этажа. Общая площадь офиса 1 224.70 м2. Фотографии и планировка соответствуют реальности. Состояние - стильный ремонт. Офис оснащен всем необходимым для комфортной и безопасной работы. Офис оснащен всем необходимым для комфортной и безопасной работы. Отличная транспортная развязка, в пешей доступности остановка общественного транспорта и станция метро Арсенальная 5 минут пешком.Оснащения Бизнес Центра:1. Система приточно-вытяжной вентиляции.2. Система кондиционирования.3. Вентиляторные конвекторы "FANCOIL".4. Автономное отопление.5. Оптоволоконные линии связи.6. Система контроля доступа в здании.7. Система противопожарной безопасности.8. Круглосуточная физическая охрана.9. Видеонаблюдение (периметр, холл, лифты, места общего пользования, парковка).10. Лифты - 13 шт., фирмы OTIS.11. Подземный паркинг и наземная парковка.12. Генератор.Цена продажи - 9 053 000 $ за помещение и паркинг.Номер оголошення на сайті компанії: SC-155-752-DP.
Создано : 17.02.2026
391 162 929 грн
(325 969 за м2)
9 053 000 $
(7 544 за м2)
Радион Попов
посредник
Создано : 17.02.2026
Просмотренные
Продажа отдельно стоящего офисного здания в центре Киева по адресу улица Эспланадная. 4 этажа + цоколь и мансарда. Общая площадь 1 410 м2. Фотографии и планировки соответствуют реальности. Планировка - open spa...
27.02.2026
Этаж:
1/5
Общая
1400 м2
259 248 600 грн
Продажа современного офиса в центре Киева по адресу улица Иоанна Павла II ( Патриса Лумумбы ). Этаж 2/2 этажного нежилого здания. Общая площадь офиса 235 м2. Фотографии и планировка соответствуют реальности. Пл...
17.02.2026
Этаж:
2/2
Общая
240 м2
56 170 530 грн
Продажа современного офиса в центре Киева по адресу улица Иоанна Павла II ( Патриса Лумумбы ). Этаж 2/2 этажного нежилого здания. Общая площадь офиса 222 м2. Фотографии и планировка соответствуют реальности. Пл...
17.02.2026
Этаж:
2/2
Общая
230 м2
47 528 910 грн
Продажа современного офиса в центре Киева по адресу улица Иоанна Павла II ( Патриса Лумумбы ). Этаж 2/2 этажного нежилого здания. Общая площадь офиса 135 м2. Фотографии и планировка соответствуют реальности. Пл...
17.02.2026
Этаж:
2/2
Общая
140 м2
29 165 468 грн
Популярное на сайте

ОдессаОдесса

КиевКиев


























