Сдам долгосрочно офисное помещение
Киев, р-н Подольский, Воздвиженская ул., 58
ID: 5310687
388 873 грн
Кол-во помещений
8
Этаж
5/6
Тип стен
кирпич
Общая площадь
460 м2
Состояние
жилое
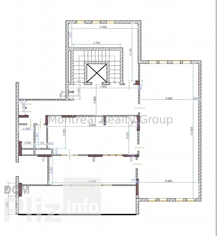
Аренда просторного офиса на Подоле в новом Бизнес Центре класса " В + " по адресу улица Воздвиженская. Этаж 5-6/6 этажного нежилого здания. Общая площадь офиса 456 м2. Фотографии и планировка соответствуют реальности. Планировка - open space + рабочие зоны + кабинеты/переговорные, кухня, санузлы, кладовки, серверная. Состояния - современный ремонт. Офис оснащен всем необходимым для комфортной и безопасной работы. Отличная траснпортная развязка, в пешей доступности остановка общественного транспортна и станция метро Контрактовая Площадь 10 минут пешком.Оснащения Бизнес Центра:1. Централизованная система вентиляции и кондиционирования.2. Индивидуальная система отопления.3. Оптоволоконные линии связи.4. Карточная система контроля доступа.5. Противопожарная система безопасности.6. Круглосуточная физическая охрана.7. Видеонаблюдение.8. Лифты - 1 шт., фирмы OTIS.9. Подземный паркинг.10. Генератор.Коммерческие условия:Арендная ставка - 9 000 $ с эксплуатации + коммунальные услуги.Номер оголошення на сайті компанії: RC-199-082-DP.
Создано : 17.02.2026
388 873 грн
9 000 $
Радион Попов
посредник
Создано : 17.02.2026
Просмотренные
Аренда просторного офиса в центре Киева по адресу улица Григория Сковороды. Этаж 2-3/4 этажного нежилого здания. Общая площадь офиса 469 м2. Фотографии и планировка соответствуют реальсности. Планировка - рабоч...
17.02.2026
Этаж:
2/4
Общая
470 м2
400 000 грн
Аренда просторного офиса на Петровке в новом Бизнес Центре класса " В + " по адресу проспект Степана Бандеры. Этаж 4/8 этажного нежилого здания. Полезная площадь офиса 420 м2. Арендуемая площадь 462.3 м2 ( 10 %...
17.02.2026
Этаж:
4/8
Общая
470 м2
399 675 грн
Аренда видового офиса в центре Киева в Бизнес Центре класса " В + " по адресу улица Петра Сагайдачного. Этаж 5/9 этажного нежилого здания. Полезная площадь офиса 414 м2. Арендуемая площадь 476.10 м2 ( 15 % коэф...
17.02.2026
Этаж:
5/9
Общая
470 м2
522 818 грн
БЕЗ КОМИССИИ Аренда офиса на Подоле в БЦ класса А. По адресу Сковороды Григория. В офисе сделан евроремонт, полностью меблированный на 46 рабочих мест. Офис находится на 8 этаже ( вид на Днепр ). Есть 6 стеклян...
11.02.2022
Этаж:
8/9
Общая
450 м2
874 964 грн
Популярное на сайте

ОдессаОдесса

КиевКиев





















