Сдам долгосрочно офисное помещение
Киев, р-н Голосеевский, Гайдара ул., 58/10
ID: 5310797
302 457 грн
Кол-во помещений
8
Этаж
1/7
Тип стен
кирпич
Общая площадь
320 м2
Состояние
жилое
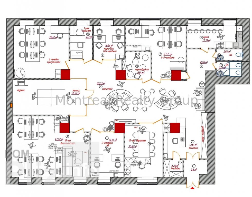
Аренда стильного офиса в центре Киева в Бизнес Центре класса " В + " по адресу улица Семьи Праховых ( Гайдара ). Этаж 1/7 этажного нежилого здания. Полезная площадь офиса 281.4 м2. Арендуемая площадь 315.17 м2. ( 12 % коэффициент BOMA ). Фотографии и планировка соответствуют реальности. Планировка - рабочие зоны + кабинеты/переговорные, кухня, санузлы, кладовки, серверная. Состояния - стильный ремонт. Офис оснащен всем необходимым для комфортной и безопасной работы. Отличная транспортная развязка, в пешей доступности остановка общественного транспорта и станции метро Олимпийская и Университет 10 минут пешком.Оснащения Бизнес Центра:1. Система приточно-вытяжной вентиляции.2. Система кондиционирования.3. Оптоволоконные линии связи.4. Система контроля доступа.5. Противопожарная система безопасности.6. Круглосуточная физическая охрана.7. Видеонаблюдение (периметр, холл, лифты, места общего пользования, парковка).8. Лифты - 3 шт., фирмы OTIS.9. Большая наземная парковка.10. Генератор.Коммерческие условия:Арендная ставка - 22 $/м2 с эксплуатации + НДС + коммунальные услуги.Номер оголошення на сайті компанії: RC-140-522-DP.
Создано : 17.02.2026
302 457 грн
7 000 $
Радион Попов
посредник
Создано : 17.02.2026
Просмотренные
Аренда просторного офиса по адресу проспект Науки. Этаж 2/5 этажного нежилого здания. Общая площадь офиса 314 м2. Фотографии и планировка соответствуют реальности. Планировка - open space + рабочие зоны + кабин...
17.02.2026
Этаж:
2/5
Общая
320 м2
190 116 грн
Аренда современного офиса в новом Бизнес Центре класса " В + " по адресу улица Академика Кнышова ( Амурская ). Этаж 1/6 этажного нежилого здания. Полезная площадь офиса 287.70 м2. Арендуемая площадь 326.54 м2 (...
17.02.2026
Этаж:
1/6
Общая
330 м2
226 843 грн
Аренда просторного офиса в Бизнес Центре класса " В + " по адресу Ахтырский переулок. Этаж 1/4 этажного нежилого здания. Полезная площадь офиса 297 м2. Арендуемая площадь 332.64 м2 ( 12 % коэффициент BOMA ). Фо...
17.02.2026
Этаж:
1/4
Общая
330 м2
203 078 грн
Оренда офісу в БЦ Palladium City. Оренда сучасного офісу 321 м2. Планування для компанії на 40–50 робочих місць. Приміщення займає весь поверх, здається меблями на 40 робочих місць Пряма вхідна група з ліфта —...
07.02.2026
Этаж:
13/24
Общая
321 м2
221 225 грн
Популярное на сайте

ОдессаОдесса

КиевКиев




















