Сдам долгосрочно офисное помещение
Киев, р-н Шевченковский, Дегтяревская ул., 53
ID: 5310809
328 382 грн
Кол-во помещений
13
Этаж
13/15
Тип стен
кирпич
Общая площадь
600 м2
Состояние
жилое
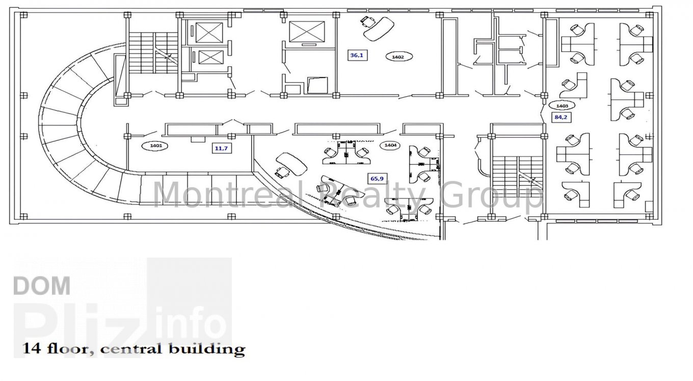
Аренда просторного офиса в центре Киева в Бизнес Центре класса " В " по адресу улица Дегтяревская. Этаж 13-14/15 этажного нежилого здания. Общая площадь офиса 600 м2. Фотографии и планировка соответствуют реальности. Планировка - рабочие зоны + кабинеты/переговорные, место для кухни, санузлы, кладовки, серверная. Состояния - хороший офисный ремонт. Офис оснащен всем необходимым для комфортной и безопасной работы. Отличная транспортная развязка, в пешей доступности остановка общественного транспорта и станция метро Берестейская 5 минут пешком.Вакантность в этом БЦ - 300 м2, 400 м2, 800 м2, 1 600 м2, 2000 м2, 2 400 м2, 2 800, 3 200 м2, 1 200 м2, 600 м2.Оснащения Бизнес Центра:1. Система кондиционирования.2. Система приточно-вытяжной вентиляции.3. Оптоволоконные линии связи.4. Система контроля доступа.5. Противопожарная система безопасности.6. Круглосуточная физическая охрана.7. Видеонаблюдение.8. Лифты - 2 шт., фирмы OTIS.9. Большая наземная парковка.10. Генератор.Коммерческие условия:Арендная ставка - 12.5 $/м2 с эксплуатации + НДС + коммунальные услуги.Номер оголошення на сайті компанії: RC-204-700-DP.
Создано : 17.02.2026
328 382 грн
7 600 $
Радион Попов
посредник
Создано : 17.02.2026
Просмотренные
Аренда современного офиса в центре Киева в новом Бизнес Центре класса " А " по адресу улица Богдана Хмельницкого. Этаж 3/17 этажного нежилого здания. Полезная площадь офиса 492.58 м2. Арендуемая площадь 586.17 ...
17.02.2026
Этаж:
15/17
Общая
600 м2
799 350 грн
Аренда современного офиса в центре Киева в Бизнес Центре класса " В + " по адресу улица Зоологическая. Этаж 8/13 этажного нежилого здания. Общая площадь офиса 600 м2. Фотографии и планировка соответствуют реаль...
17.02.2026
Этаж:
8/13
Общая
600 м2
492 572 грн
Аренда просторного офиса в центре Киева в Бизнес Центре класса " В " по адресу Варяжский переулок ( Бехтеревский переулок ). Этаж 3/6 этажного нежилого здания. Общая площадь офиса 607 м2. Фотографии и планировк...
17.02.2026
Этаж:
3/6
Общая
600 м2
302 457 грн
Офіснй блок в БЦ, 10 кабінетів, 590 м.кв., генератор, метро Дорогожичі. Автономне енергозабезпечення в БЦ, за окрему плату, можливе підключення дизельного генератора до офису! Також на даному об`єкті встановлен...
07.02.2026
Этаж:
4/5
Общая
590 м2
300 грн
Популярное на сайте

ОдессаОдесса

КиевКиев
















