Сдам долгосрочно офисное помещение
Киев, р-н Шевченковский, Дегтяревская ул., 27Т
ID: 5310885
339 184 грн
Кол-во помещений
12
Этаж
10/10
Тип стен
кирпич
Общая площадь
790 м2
Состояние
жилое
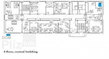
Аренда просторного офиса в Бизнес Центре класса " В " улица Дегтяревская. Этаж 10/10 этажного нежилого здания. Полезная площадь офиса 700 м2. Арендуемая площадь 785 м2 ( 11 % коэффициент BOMA ). Фотографии и планировка соответствуют реальности. Планировка - open space + рабочие зоны + кабинеты/переговорные, кухня, санузлы, кладовки, серверная. Состояние - хороший офисный ремонт. Офис оснащен всем необходимым для комфортной и безопасной работы. Отличная транспортная развязка, в пешей доступности остановка общественного транспорта и станции метро Лукьяновская и Шулявская 10 минут пешком.Оснащения Бизнес Центра:1. Система кондиционирования с возможностью регулировки микроклимата.2. Система вентиляции чиллер-фенкойл3. Оптоволоконные линии связи.4. Система контроля доступа.5. Противопожарная система безопасности.6. Круглосуточная физическая охрана.7. Видеонаблюдение.8. Лифты - 4 шт., фирмы TYSSENKRUPP.9. Большая наземная парковка.10. 2 независимых источника электропитания.Коммерческие условия:Арендная ставка - 9.5 $/м2 с эксплуатации + НДС + коммунальные услуги.Номер оголошення на сайті компанії: RC-196-817-DP.
Создано : 17.02.2026
339 184 грн
7 850 $
Радион Попов
посредник
Создано : 17.02.2026
Просмотренные
Аренда просторного офиса в Бизнес Центре класса " В + " улица Дегтяревская. Этаж 8/10 этажного нежилого здания. Полезная площадь офиса 700 м2. Арендуемая площадь 777 м2 ( 11 % коэффициент BOMA ). Фотографии и п...
17.02.2026
Этаж:
8/10
Общая
780 м2
319 740 грн
Аренда просторного офиса в центре Киева в Бизнес Центре класса " В + " по адресу улица Дегтяревская. Этаж 5/6 этажного нежилого здания. Общая площадь офиса 770 м2. Фотографии и планировка соответствуют реальнос...
17.02.2026
Этаж:
5/6
Общая
800 м2
561 705 грн
Аренда просторного офиса в центре Киева в Бизнес Центре класса " В + " по адресу улица Бульварно-Кудрявская. Этаж 1/5 этажного нежилого здания. Общая площадь офиса 783.1 м2. Фотографии и планировка соответствую...
17.02.2026
Этаж:
1/4
Общая
800 м2
483 931 грн
Аренда просторного офиса в центре Киева в Бизнес Центре класса " В " по адресу улица Дегтяревская. Этаж 3-4/15 этажного нежилого здания. Общая площадь офиса 800 м2. Фотографии и планировка соответствуют реально...
17.02.2026
Этаж:
3/15
Общая
800 м2
432 081 грн
Популярное на сайте

ОдессаОдесса

КиевКиев













