Сдам долгосрочно офисное помещение
Киев, р-н Голосеевский, Гайдара ул., 58/10
ID: 5310902
505 095 грн
Кол-во помещений
8
Этаж
6/7
Тип стен
кирпич
Общая площадь
560 м2
Состояние
жилое
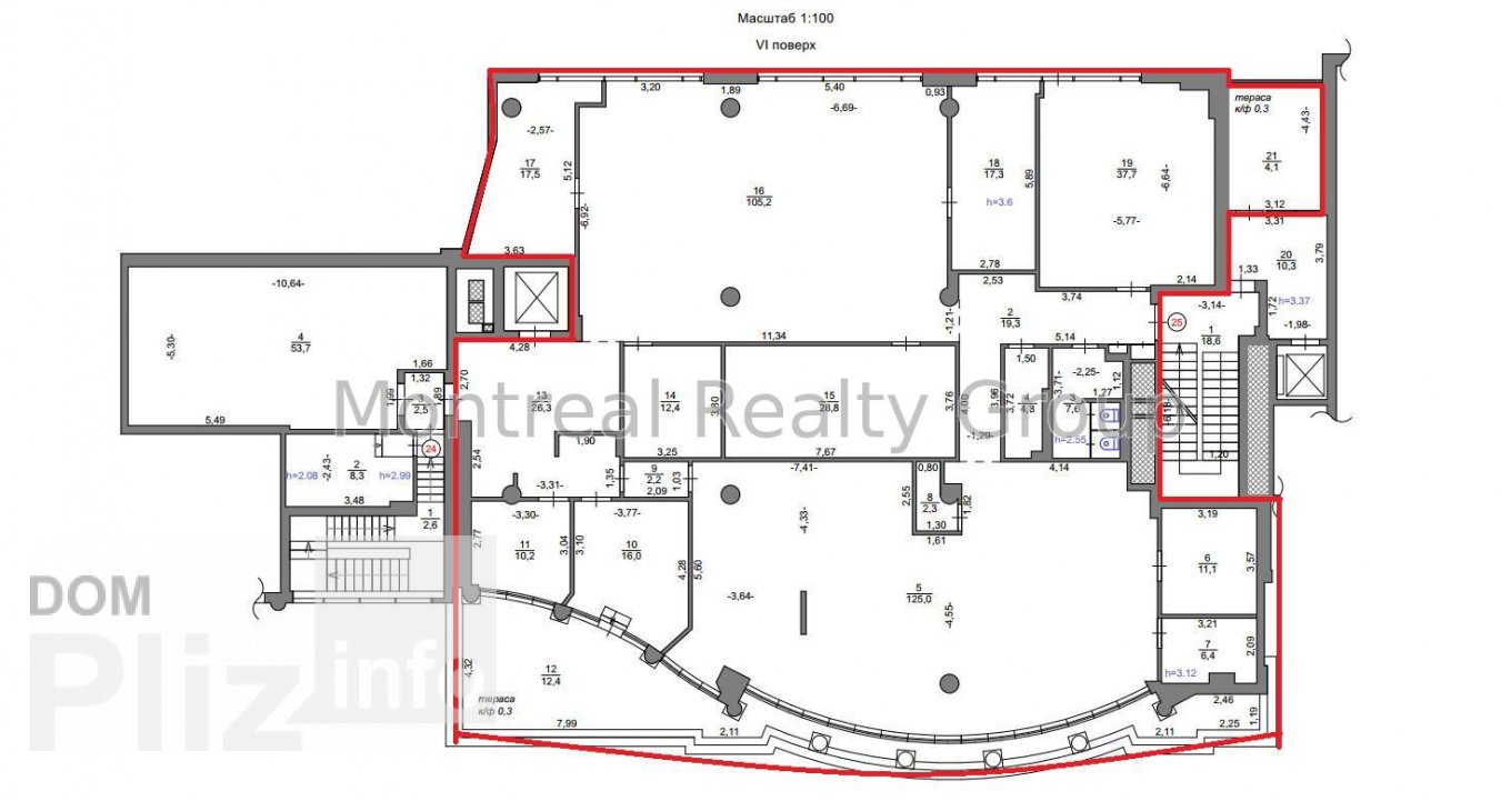
Аренда современного офиса в центре Киева в Бизнес Центре класса " В + " по адресу улица Семьи Праховых ( Гайдара ). Этаж 6/7 этажного нежилого здания. Полезная площадь офиса 479 м2 + 12.4 м2 + 4.1 м2 терраса . Арендуемая площадь 554.96 м2. ( 12 % коэффициент BOMA ). Фотографии и планировка соответствуют реальности. Планировка - open space + рабочие зоны + кабинеты/переговорные, кухня, санузлы, кладовки, серверная. Состояния - стильный ремонт. Офис оснащен всем необходимым для комфортной и безопасной работы. Отличная транспортная развязка, в пешей доступности остановка общественного транспорта и станции метро Олимпийская и Университет 10 минут пешком.Вакантность в этом БЦ - 409 м2, 425 м2, 728 м2, 167 м2, 362 м2, 577 м2, 258 м2, 649 м2, 961 м2, 1 821 м2, 1 488 м2.Оснащения Бизнес Центра:1. Система приточно-вытяжной вентиляции.2. Система кондиционирования.3. Оптоволоконные линии связи.4. Система контроля доступа.5. Противопожарная система безопасности.6. Круглосуточная физическая охрана.7. Видеонаблюдение (периметр, холл, лифты, места общего пользования, парковка).8. Лифты - 3 шт., фирмы OTIS.9. Большая наземная парковка.10. Генератор.Коммерческие условия:Арендная ставка - 21 $/м2 с эксплуатации + НДС + коммунальные услуги.Номер оголошення на сайті компанії: RC-164-211-DP.
Создано : 17.02.2026
505 095 грн
11 700 $
Радион Попов
посредник
Создано : 17.02.2026
Просмотренные
Аренда просторного офиса в центре Киева в Бизнес Центре класса " В + " по адресу улица Владимирская. Этаж 7/7 этажного нежилого здания. Общая площадь офиса 549.67 м2. Фотографии и планировка соответствуют реаль...
17.02.2026
Этаж:
7/7
Общая
550 м2
431 705 грн
Аренда современного офиса в центре Киева в Бизнес Центре класса " А " по адресу Саксаганского. Этаж 3/10 этажного нежилого здания. Полезная площадь офиса 487.5 м2. Арендуемая площадь 560.62 м2 ( 15 % коэффициен...
17.02.2026
Этаж:
3/10
Общая
560 м2
474 876 грн
Аренда просторного офиса в центре Киева в Бизнес Центре класса " В " по адресу улица Жилянская. Этаж 3/9 этажного нежилого здания. Общая площадь офиса 545.1 м2. Фотографии и планировка соответствуют реальности....
17.02.2026
Этаж:
3/9
Общая
550 м2
330 254 грн
Аренда современного офиса в центре Киева по адресу улица Жилянская. Отдельный вход с улицы Семьи Праховых ( Гайдара ), несколько входов в помещение. Этаж 2/2 этажного нежилого здания. Общая площадь офиса 551 м2...
17.02.2026
Этаж:
2/2
Общая
550 м2
259 023 грн
Популярное на сайте

ОдессаОдесса

КиевКиев



















