Сдам долгосрочно офисное помещение
Киев, р-н Подольский, Бандеры Степана пр-т, 9Б
ID: 5310910
1 062 919 грн
Кол-во помещений
18
Этаж
14/22
Тип стен
кирпич
Общая площадь
1500 м2
Состояние
жилое
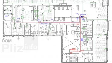
Аренда современного офиса в новом Бизнес Центре класса " В + " по адресу проспект Степана Бандеры. Этаж 14-15/22 этажного нежилого здания. Общая площадь офиса 1 536 м2. Фотографии и планировка соответствуют реальности. Планировка - open space + рабочие зоны + кабинеты/переговорные, кухня, санузлы, кладовки, серверная, балкон. Состояния - современный ремонт. Офис оснащен всем необходимым для комфортной и безопасной работы. Отличная транспортная развязка, в пешей доступности остановка общественного транспорта и станция метро Почайна 15 минут пешком.Оснащения Бизнес Центра:1. Система кондиционирования.2. Система приточно-вытяжной вентиляции.3. Автономное отопление.4. Оптоволоконные линии связи.5. Система контроля доступа.6. Противопожарная система безопасности.7. Круглосуточная физическая охрана.8. Видеонаблюдение.9. Лифты - 4 шт., фирмы OTIS.10. Большая наземная парковка.11. Генератор на все общие зоны.Коммерческие условия:Арендная ставка - 16 $/м2 с эксплуатации + НДС + коммунальные услуги.Номер оголошення на сайті компанії: RC-209-903-DP.
Создано : 17.02.2026
1 062 919 грн
24 600 $
Радион Попов
посредник
Создано : 17.02.2026
Просмотренные
Аренда современного офиса в новом Бизнес Центре класса " В + " по адресу проспект Степана Бандеры. Этаж 2/8 этажного нежилого здания. Полезная площадь офиса 1 377 м2. Арендуемая площадь 1 514.7 м2 ( 10 % коэффи...
17.02.2026
Этаж:
2/8
Общая
1500 м2
1 244 393 грн
Аренда современного офиса в центре Киева в Бизнес Центре класса " А + " по адресу улица Ярославская. Этаж 3/11 этажного нежилого здания. Полезная площадь офиса 1 293.84 м2. Арендуемая площадь 1 487.92 м2 ( 15 %...
17.02.2026
Этаж:
3/11
Общая
1500 м2
1 352 414 грн
Популярное на сайте

ОдессаОдесса

КиевКиев




















