Сдам долгосрочно офисное помещение
Киев, р-н Печерский, Мечникова ул., 2
ID: 5310926
1 961 648 грн
Кол-во помещений
20
Этаж
26/33
Тип стен
кирпич
Общая площадь
1600 м2
Состояние
жилое
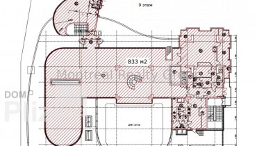
Аренда просторного офиса в центре Киева в Бизнес Центре класса " А " по адресу улица Мечникова. Этаж 26/33 этажного нежилого здания. Полезная площадь офиса 1 373.5 м2. Арендуемая площадь 1 620.73 м2 ( 18 % коэффициент BOMA ). Фотографии и планировка соответствуют реальности. Планировка - рабочие зоны + кабинеты/переговорные, место для кухни, санузлы, кладовки, серверная. Состояния - хороший офисный ремонт. Офис оснащен всем необходимым для комфортной и безопасной работы. Отличная транспортная развязка, в пешей доступности остановка общественного транспорта и станции метро Кловская и Палац Спорту 1-5 минут пешком.Вакантность в этом БЦ:Офисы с ремонтом - 57 м2, 540 м2, 472 м2, 303 м2, 106 м2, 637 м2, 272 м2, 94 м2, 413 м2, 141 м2, 728 м2, 401 м2, 405 м2, 761 м2.Офисы без ремонта - 437 м2, 318 м2, 2 006 м2, 224 м2.Оснащения Бизнес Центра:1. Система кондиционирования при помощи фанкойлов.2. Система приточно-вытяжной вентиляции.3. Полный климат-контроль HVAC.4. Автономное отопление.5. Оптоволоконные линии связи.6. Система контроля доступа.7. Пожарная и охранная сигнализации.8. Противопожарная система безопасности.9. Видеонаблюдение (периметр, холл, лифты, места общего пользования, парковка).10. Лифты - 8 шт., фирмы OTIS.11. Подземный паркинг и наземная парковка.12. Бесперебойное электричество.13. Генератор.Коммерческие условия:Арендная ставка - 28 $/м2 с эксплуатации + НДС + коммунальные услуги.Номер оголошення на сайті компанії: RC-210-205-DP.
Создано : 17.02.2026
1 961 648 грн
45 400 $
Радион Попов
посредник
Создано : 17.02.2026
Просмотренные
Аренда современного офиса в центре Киева по адресу улица Генерала Алмазова ( Кутузова ). Этаж 2 и половина 3/3 этажного нежилого здания. Общая площадь офиса 1 569 м2. Фотографии и планировка соответствуют раель...
17.02.2026
Этаж:
2/3
Общая
1600 м2
1 425 867 грн
Аренда видового офиса в центре Киева в Бизнес Центре класса " А " по адресу улица Мечникова. Этаж 23/33 этажного нежилого здания. Полезная площадь офиса 1 373.5 м2. Арендуемая площадь 1 620.73 м2 ( 18 % коэффиц...
17.02.2026
Этаж:
23/33
Общая
1600 м2
2 173 367 грн
Аренда просторного офиса в центре Киева в Бизнес Центре класса " А " по адресу улица Бассейная. Офис 4-х уровневый. Этаж 8-9-10-11/15 этажного нежилого здания. Общая площадь офиса 1 620 м2. Фотографии и планиро...
17.02.2026
Этаж:
8/15
Общая
1600 м2
1 339 451 грн
БЕЗ КОМИССИИ! Аренда офиса 1600 м2 в центре Печерского района в Бизнес-центре класса "А". Помещение 4-х уровневое, с террасами, расположено на 8-11-м этажах, смешанная планировка. Офис с ремонтом и панорамными ...
11.02.2022
Этаж:
9/15
Общая
1600 м2
1 679 931 грн
Популярное на сайте

ОдессаОдесса

КиевКиев


















