Сдам долгосрочно офисное помещение
Киев, р-н Шевченковский, Михайловская ул., 10
ID: 5310953
797 189 грн
Кол-во помещений
13
Этаж
5/5
Тип стен
кирпич
Общая площадь
620 м2
Состояние
жилое
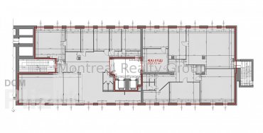
Аренда современного офиса в центре Киева в новом Бизнес Центре класса " В + " по адресу улица Михайловская. Этаж 5/5 этажного нежилого здания. Общая площадь офиса 614 м2. Фотографии и планировка соответствуют реальности. Планировка - open space + рабочие зоны + кабинеты/переговорные, кухня, санузлы, кладовки, серверная. Состояния - современный ремонт. Офис оснащен всем необходимым для комфортной и безопасной работы. Отличная транспортая развязка, в пешей доступности остановка общественного транспорта и станция метро Майдан Независимости 1 минута пешком.Оснащения Бизнес Центра:1. Система кондиционирования.2. Система приточно-вытяжной вентиляции.3. Автономная отопления.4. Оптоволоконные линии связи.5. Система контроля доступа в здании.6. Противопожарная система безопасности.7. Круглосуточная физическая охрана.8. Видеонаблюдение (периметр, холл, лифты, места общего пользования, парковка).9. Лифты - 4 шт., фирмы KONE.10. Подземный паркинг и наземная парковка.11. Генератор.Коммерческие условия:Арендная ставка - 30 $/м2 с эксплуатации + НДС + коммунальные услуги.Номер оголошення на сайті компанії: RC-210-525-DP.
Создано : 17.02.2026
797 189 грн
18 450 $
Радион Попов
посредник
Создано : 17.02.2026
Просмотренные
Аренда современного офиса в центре Киева в Бизнес Центре класса " В + " по адресу улица Ростиславская ( Маршала Рыбалко ). Этаж 3/4 этажного нежилого здания. Общая площадь офиса 612 м2. Фотографии и планировка ...
17.02.2026
Этаж:
3/4
Общая
620 м2
371 590 грн
Аренда современного офиса в центре Киева в Бизнес центре класса " В + " по адресу улица Николая Пимоненко. Этаж 5/6 этажного нежилого здания. Полезная площадь офиса 552.72 м2. Арендуемая площадь 619.05 м2 ( 12 ...
17.02.2026
Этаж:
5/6
Общая
620 м2
427 760 грн
Офіс в 7 хвилин пішки від м. Лукянівська та м. Політехнічний інститут. Приміщення знаходиться в бізнес-центрі, є власна парковка для автомобілів та велосипедів (40 паркомісць). Територія БЦ закрита, охороняєть...
07.02.2026
Этаж:
3/3
Общая
612 м2
432 грн
Без комиссии! Аренда офиса 619,15 м2 (без учета коэффициента свободных площадей) в бизнес-центре класса "В+" в Шевченковскойм районе по улице Пимоненко, в пешей доступности к метро Лукьяновская. Находится на 5 ...
11.02.2022
Этаж:
5/6
Общая
619.15 м2
401 274 грн
Популярное на сайте

ОдессаОдесса

КиевКиев





















