Сдам долгосрочно офисное помещение
Киев, р-н Печерский, Грушевского Михаила ул., 9Б
ID: 5310956
820 954 грн
Кол-во помещений
10
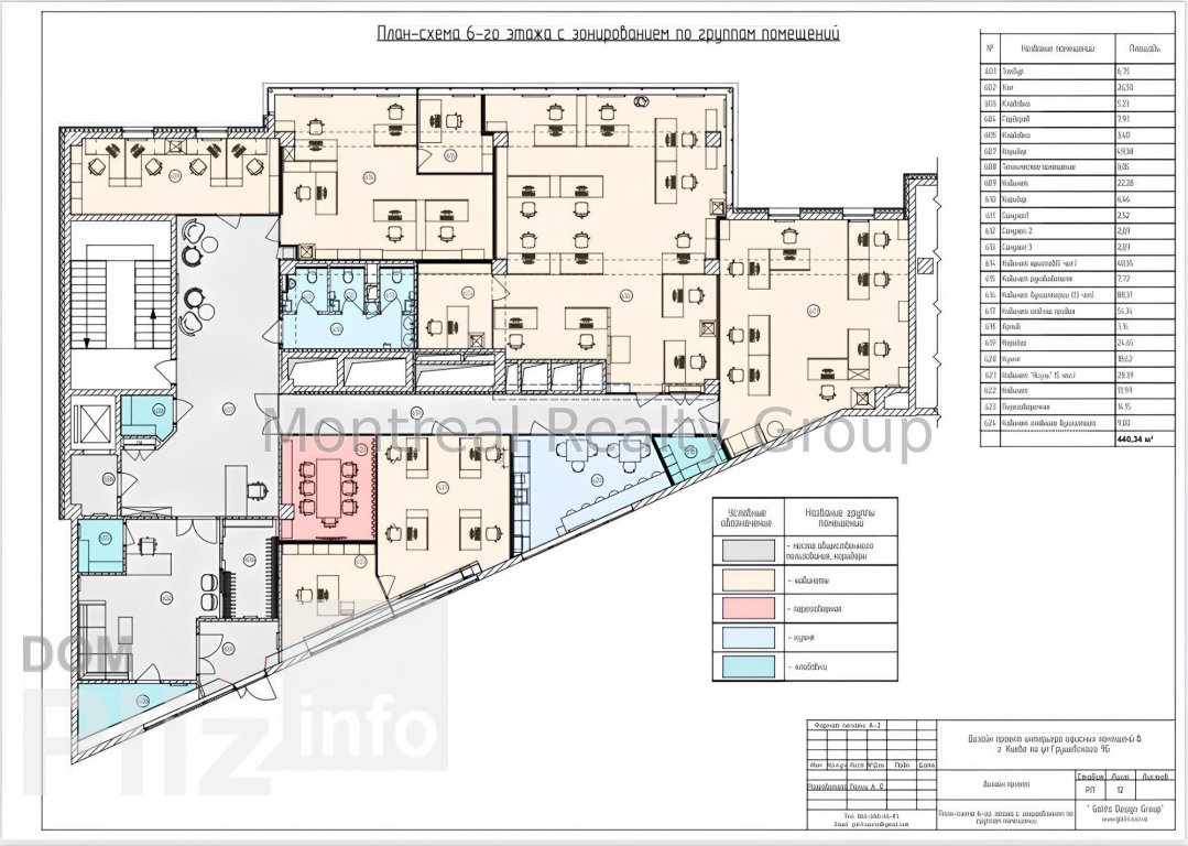
Этаж
6/12
Тип стен
кирпич
Общая площадь
460 м2
Состояние
жилое
Аренда стильного офиса в центре Киева в Бизнес Центре класса " А + " по адресу улица Михаила Грушевского. Этаж 6/12 этажного нежилого здания. Общая площадь офиса 460 м2. Фотографии и планировка соответствуют реальности. Планировка - open space + рабочие зоны + кабинеты/переговорные, кухня, санузлы, кладовки, серверная. Состояние - стильный ремонт и мебель. Офис оснащен всем необходимым для комфортной и безопасной работы. Отличная транспортная развязка, в пешей доступности остановка общественного транспорта и станция метро Арсенальная 5 минут пешком.Оснащения Бизнес Центра:1. Система приточно-вытяжной вентиляции.2. Система кондиционирования.3. Вентиляторные конвекторы "FANCOIL".4. Автономное отопление.5. Оптоволоконные линии связи.6. Система контроля доступа в здании.7. Система противопожарной безопасности.8. Круглосуточная физическая охрана.9. Видеонаблюдение (периметр, холл, лифты, места общего пользования, парковка).10. Лифты - 13 шт., фирмы OTIS.11. Подземный паркинг и наземная парковка.12. Генератор.Коммерческие условия:Арендная ставка - 19 000 $ с НДС + эксплуатация - 79 грн./м2 + коммунальные услуги.Номер оголошення на сайті компанії: RC-191-107-DP.
Создано : 17.02.2026
820 954 грн
19 000 $
Радион Попов
посредник
Создано : 17.02.2026
Просмотренные
Аренда просторного офиса в центре Киева в Бизнес Центре класса " В " по адресу Крутой Спуск. Этаж 4-5/11 этажного здания. Общая площадь офиса 449.01 м2. Фотографии и планировка соответствуют реальности. Планиро...
17.02.2026
Этаж:
4/11
Общая
450 м2
216 041 грн
Аренда просторного офиса в центре Киева в Бизнес Центре класса " В " по адресу Крутой Спуск. Этаж 7-8/11 этажного здания. Общая площадь офиса 465.35 м2. Фотографии и планировка соответствуют реальности. Планиро...
17.02.2026
Этаж:
7/11
Общая
470 м2
222 522 грн
Аренда современного офиса в центре Киева по адресу улица Эспланадная. Этаж 3-4/5 этажного здания. Общая площадь офиса 460 м2. Фотографии и планировка соответствуют реальности. Планировка - open space + рабочие ...
17.02.2026
Этаж:
3/5
Общая
460 м2
1 036 994 грн
Аренда современного офиса в центре Киева в Бизнес Центре класса " А + " по адресу улица Болсуновская ( Сергея Струтинского ). Этаж 9/19 этажного нежилого здания. Общая площадь офиса 460 м2. Фотографии и планиро...
17.02.2026
Этаж:
9/19
Общая
460 м2
717 254 грн
Популярное на сайте

ОдессаОдесса

КиевКиев















