Сдам долгосрочно офисное помещение
Киев, р-н Соломенский, Вацлава Гавела бул., 6Б
ID: 5311000
760 463 грн
Кол-во помещений
18
Этаж
3/7
Тип стен
кирпич
Общая площадь
1400 м2
Состояние
жилое
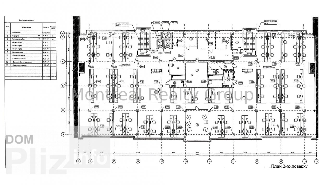
Аренда стильного офиса в новом Бизнес Центре класса " В + " по адресу Бульвар Валцава Гавела. Этаж 3/7 этажного нежилого здания. Общая площадь офиса 1 406 м2. Фотографии и планировка соответстуют реальности. Планировка - open space + рабочие зоны + кабинеты/переговорные, кухня, санузлы, кладовки, серверная. Состояния - стильный ремонт и мебель. Офис оснащен всем необходимым для комфортной и безопасной работы. Отличная транспортная развязка, в пешей доступности остановка общественного транспорта и станция метро Берестейская 15 минут пешком.Вакантность в этом БЦ - 1 406 м2, 1007 м2, 1 118 м2, 2 125 м2, 3 531 м2.Оснащения Бизнес Центра:1. Система приточно-вытяжной вентиляции.2. Система чиллер-фанкойл.3. Автономное отопление.4. Оптоволоконные линии связи.5. Система контроля доступа.6. Противопожарная система безопасности.7. Круглосуточная физическая охрана.8. Видеонаблюдение (периметр, холл, лифты, места общего пользования, парковка).9. Лифты - 3 шт., фирмы OTIS.10. Подземный паркинг и наземная парковка.11. Генератор.Коммерческие условия:Арендная ставка - 12.5 $/м2 с эксплуатации + НДС + коммунальные услуги.Номер оголошення на сайті компанії: RC-212-269-DP.
Создано : 17.02.2026
760 463 грн
17 600 $
Радион Попов
посредник
Создано : 17.02.2026
Просмотренные
Оренда офісу на вул. Дегтярівській. Загальна площа 686.75 кв.м. Ставка оренди: 8 $ з ПДВ. Ставка експлуатаційних послуг: 3 $ з ПДВ. Коефіцієнт загальних площ: 11% Кількість платежів, які сплачуються на момент п...
26.02.2026
Этаж:
1
Общая
687 м2
328 352 грн
Офіс з сучасним ремонтом в БЦ, 106 м.кв. м.Вокзальна, Соломянка,, Бізнес-центр розташований у Солом`янському районі Києва 4 поверх, кабінетна система площею 105,8 м.кв, з урахуванням площ загального користуванн...
21.02.2026
Этаж:
4/4
Общая
105 м2
518 грн
Офіс з сучасним ремонтом в БЦ, 281 м.кв. м. Вокзальна, Соломянка, 4 поверх, кабінетна система площею 281,05 м.кв, з урахуванням площ загального користування. 6 кабінетів поєднані між собою загальним коридором. ...
21.02.2026
Этаж:
4/4
Общая
280 м2
518 грн
Аренда просторного офиса в Бизнес Центре класса " В + " по адресу улица Николая Гринченко. Этаж 2/5 этажного нежилого здания. Полезная площадь офиса 759 м2. Арендуемая площадь 834.90 м2 ( 10 % коэффициент BOMA ...
17.02.2026
Этаж:
2/5
Общая
840 м2
648 122 грн
Популярное на сайте

ОдессаОдесса

КиевКиев

































