Сдам долгосрочно офисное помещение
Киев, р-н Печерский, Василия Тютюнника ул., 28Б
ID: 5311093
1 927 081 грн
Кол-во помещений
25
Этаж
1/5
Тип стен
кирпич
Общая площадь
1900 м2
Состояние
жилое
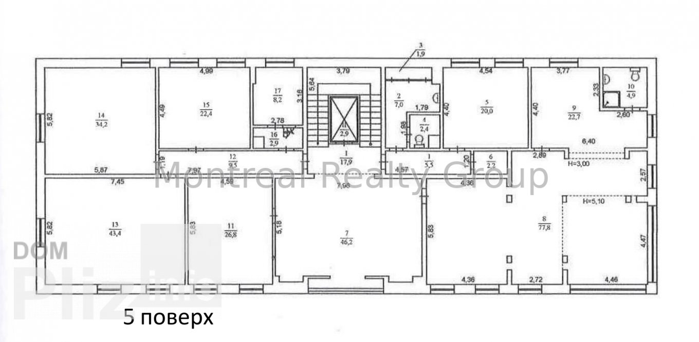
Аренда офисного здания в центре Киева по адресу улица Василия Тютюнника ( Анри Барбюса ). 5 этажей. Общая площадь здания 1 857 м2. Фотографии и планировка соответствуют реальности. Планировка - рабочие зоны + кабинеты/переговорные, кухни, санузлы, серверная. Состояние - хороший офисный ремонт. Здание оснащена системой кондиционирования и вентиляция, автономное отопление, лифтом, пожарной и охранной сигнализации, системой СКД. Территория здания ограждена, на территории пост охраны, шлагбаум, видеонаблюдение. Количество машиномест для парковки - 25 места. Отличная транспортная развязка, в пешей доступности остановка общественного транспорта и станция метро Палац Украина 10 минут пешком.Коммерческие условия:Арендная ставка - 24 $/м2 с экспуатации + НДС + коммунальные услуги.Номер оголошення на сайті компанії: RC-167-405-DP.
Создано : 17.02.2026
1 927 081 грн
44 600 $
Радион Попов
посредник
Создано : 17.02.2026
Просмотренные
Пропонується в оренду представницький офіс 60 метрів в 5-ти хвилинах від метро Печерська на вулиці Євгена Коновальца 32Б. Повністю мебльований офіс з дизайнерським ремонтом в новому жилому комплексі на першому ...
27.02.2026
Этаж:
1/22
Общая
60 м2
43 400 грн
Оренда офісу на 8-му поверсі. Площа 190 м2. Кабінетне планування - 2 каб - 52 м2, 2 - 12 м2, 2 - 8 м2, кухня, сан вузол. Житловий фонд, дешеві комунальні. В офісі встановлено інвертор. В будинку встановлено ген...
25.02.2026
Этаж:
8
Общая
190 м2
85 984 грн
Аренда отдельно стоящего офисного здания в центре Киева по адресу улица Редутная. 4 этажа. Общая площадь здания 750 м2. Фотографии и планировка соответствуют реальности. Планировка - open space + рабочие зоны +...
24.02.2026
Этаж:
1/4
Общая
750 м2
432 081 грн
Аренда современного офиса в центре Киева в Бизнес Центре класса " А " по адресу улица Большая Васильковская. Этаж 3/6 этажного нежиого здания. Общая площадь офиса 269 м2. Фотографии и планировка соответствуют р...
24.02.2026
Этаж:
3/6
Общая
270 м2
233 324 грн
Популярное на сайте

ОдессаОдесса

КиевКиев





















