Сдам долгосрочно офисное помещение
Киев, р-н Шевченковский, Зоологическая ул., 5/1
ID: 5311112
946 257 грн
Кол-во помещений
14
Этаж
5/13
Тип стен
кирпич
Общая площадь
1100 м2
Состояние
жилое
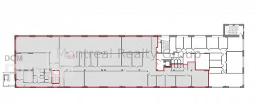
Аренда современного офиса в центре Киева в Бизнес Центре класса " В + " по адресу улица Зоологическая. Этаж 5/13 этажного нежилого здания. Общая площадь офиса 1 155 м2. Фотографии и планировка соответствуют реальности. Планировка - open space + рабочие зоны + кабинеты/переговорные, кухни, санузлы, кладовки, серверная. Состояния - современный ремонт. Офис оснащен всем необходимым для комфортной и безопасной работы. Отличная транспортная развязка, в пешей доступности остановка общественного транспорта и станции метро Политехнический Институт и Лукьяновская 10-15 минут пешком.Вакантность в этом БЦ - 555 м2, 600 м2, 1 155 м2.Оснащения Бизнес Центра:1. Система кондиционирования при помощи фанкойлов.2. Система приточно-вытяжной вентиляции.3. Автономное отопление.4. Оптоволоконные линии связи.5. Система контроля доступа.6. Противопожарная система безопасности.7. Круглосуточная физическая охрана.8. Видеонаблюдение (периметр, холл, лифты, места общего пользования, парковка).9. Лифты - 4 шт., фирмы Shindler.10. Подземный паркинг и наземная парковка.11. Бесперебойное электричество.12. Генератор.Коммерческие условия:Арендная ставка - 19 $/м2 с эксплуатации + НДС + коммунальные услуги.Номер оголошення на сайті компанії: RC-216-078-DP.
Создано : 17.02.2026
946 257 грн
21 900 $
Радион Попов
посредник
Создано : 17.02.2026
Просмотренные
Аренда отдельно стоящего офисного здания в центре Киева по адресу улица Владимира Мономаха ( Отто Шмидта ). 4 этажа. Общая площадь здания 1084 м2. Фотографии и планировка соответствуют реальности. Планировка - ...
17.02.2026
Этаж:
1/4
Общая
1100 м2
691 330 грн
Аренда просторного офиса в Бизнес центре класса " В + " по адресу улица Николая Пимоненко. Этаж 6/6 этажного нежилого здания. Полезная площадь офиса 985.67 м2. Арендуемая площадь 1 103.95 м2 ( 10 % коэффициент ...
17.02.2026
Этаж:
6/6
Общая
1100 м2
702 132 грн
Популярное на сайте

ОдессаОдесса

КиевКиев

















