Сдам долгосрочно офисное помещение
Киев, р-н Голосеевский, Гайдара ул., 58/10
ID: 5311204
398 286 грн
Кол-во помещений
10
Этаж
1/7
Тип стен
кирпич
Общая площадь
430 м2
Состояние
жилое
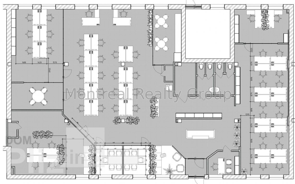
Аренда стильного офиса в центре Киева в Бизнес Центре класса " В + " по адресу улица Семьи Праховых ( Гайдара ). Этаж 1/7 этажного нежилого здания. Полезная площадь офиса 372.92 м2. Арендуемая площадь 425.12 м2. ( 12 % коэффициент BOMA ). Фотографии и планировка соответствуют реальности. Планировка - open space + рабочие зоны + кабинеты/переговорные, кухня, санузлы, кладовки, серверная. Состояния - стильный ремонт. Офис оснащен всем необходимым для комфортной и безопасной работы. Отличная транспортная развязка, в пешей доступности остановка общественного транспорта и станции метро Олимпийская и Университет 10 минут пешком.Вакантность в этом БЦ - 409 м2, 425 м2, 728 м2, 167 м2, 362 м2, 577 м2, 258 м2, 649 м2, 961 м2, 1 821 м2, 1 488 м2.Оснащения Бизнес Центра:1. Система приточно-вытяжной вентиляции.2. Система кондиционирования.3. Оптоволоконные линии связи.4. Система контроля доступа.5. Противопожарная система безопасности.6. Круглосуточная физическая охрана.7. Видеонаблюдение (периметр, холл, лифты, места общего пользования, парковка).8. Лифты - 3 шт., фирмы OTIS.9. Большая наземная парковка.10. Генератор.Коммерческие условия:Арендная ставка - 21.5 $/м2 с эксплуатации + НДС + коммунальные услуги.Номер оголошення на сайті компанії: RC-166-611-DP.
Создано : 17.02.2026
398 286 грн
9 200 $
Радион Попов
посредник
Создано : 17.02.2026
Просмотренные
Аренда офиса в центре Киева в Бизнес Центре класса " А " по адресу Саксаганского. Этаж 3/10 этажного нежилого здания. Полезная площадь офиса 374.20 м2. Арендуемая площадь 430.33 м2 ( 15 % коэффициент BOMA ). Фо...
17.02.2026
Этаж:
3/10
Общая
430 м2
292 221 грн
Аренда современного офиса в центре Киева в Бизнес Центре класса " В + " по адресу улица Семьи Праховых ( Гайдара ). Этаж 5/7 этажного нежилого здания. Полезная площадь офиса 371.8 м2 + 22.6 м2 площадь террасы. ...
17.02.2026
Этаж:
5/7
Общая
440 м2
422 097 грн
Аренда просторного офиса в Бизнес Центре класса " В + " по адресу Ахтырский переулок. Этаж 1/4 этажного нежилого здания. Полезная площадь офиса 389.95 м2. Арендуемая площадь 436.74 м2 ( 12 % коэффициент BOMA )....
17.02.2026
Этаж:
1/4
Общая
440 м2
303 044 грн
Аренда стильного офиса в Бизнес Центре класса " В + " по адресу Ахтырский переулок. Этаж 2/4 этажного нежилого здания. Полезная площадь офиса 385.17 м2. Арендуемая площадь 431.39 м2 ( 12 % коэффициент BOMA ). Ф...
17.02.2026
Этаж:
2/4
Общая
430 м2
259 752 грн
Популярное на сайте

ОдессаОдесса

КиевКиев


















