Продам 3-комнатную квартиру
Киев, р-н Днепровский, Дарницький бульвар, 12
ID: 5314833
6 352 001 грн
(63 520 за м2)
Кол-во комнат
3
Этаж
4/16
Тип стен
кирпич
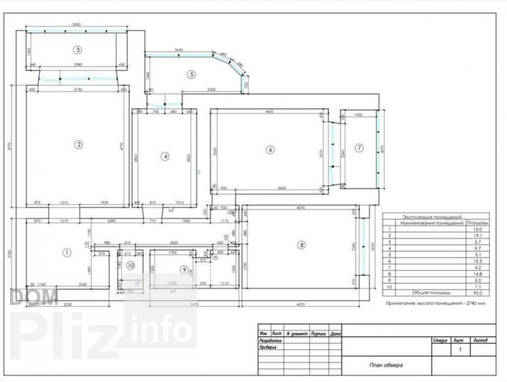
Общая площадь
100 м2
Кухня площадь
9 м2
Состояние
жилое
Тип недвижимости
Вторичный рынок
Продається 3-кімнатна роздільна квартира на Дарницькому бульварі. Загальна площа квартири складає 100 м, двостороння має 2 великі лоджії та 1 балкон. 3 гарним просторим видом. Будинок будувався под кабмін. Комфортний середній поверх. Нові личільники, 2 ліфта. Є все що потрібно для комфортного життя, школи, ринок, дитячі садки, парк Перемоги, Дитячий Світ. 300м м.Дарниця Дім розташований так,що дозволить вам насолоджуватися лише тишею, а не шумом автомобілів. Прописаних осіб немає, один власник. дуже тепла будівля, в літку дуже прохолодно В ціну входить ще проект дизайнерський по ремонту, котрий коштував 5000$
Создано : 06.03.2026
6 352 001 грн
(63 520 за м2)
145 000 $
(1 450 за м2)
Олександр
посредник
Создано : 06.03.2026
Просмотренные
Продам 3к. квартиру в ЖК Паркові озера, вул. Воскресенська 18, 90 кв.м. 19/26 пов. Простора кухня, великий коридор, 2 санвузли. Панорамне засклення балкону, кухні. Тепла підлога в санвузлах та на балконі. ЖК Па...
06.03.2026
Комнат
3
Этаж:
19/26
Общая
90 м2
Кухня
15 м2
6 132 966 грн
Продается 3-комнатная большая квартира на Ник.-Слободской 2Б (110 кв.м.) с отличным евроремонтом, в идеальном состоянии. 5 минут ходьбы до м. Левобережная, базар. 5 этаж. Район тихий, безопасный, рядом развитая...
06.03.2026
Комнат
3
Этаж:
5/18
Общая
110 м2
Кухня
18 м2
9 418 484 грн
До продажу 3-к квартира в ЖК «Паркові озера». Під ремонт ЖК «Паркові озера» розташований поряд із найбільшою зоною відпочинку Дніпровського району – парком «Перемога». Вул.Воскресенська, 18-Б, Дніпровський р-н...
06.03.2026
Комнат
3
Этаж:
13/25
Общая
95 м2
Кухня
13 м2
5 694 897 грн
ЖК Новий Автограф Введений в експлуатацію *Генерала Жмаченка, 22 *площа 99,48 м2 *буд. 2 *3 кімнати *14 поверх *вікна на парк, та на дитячий майданчик 140 000$...
06.03.2026
Комнат
3
Этаж:
14/24
Общая
99 м2
Кухня
31 м2
6 132 966 грн
Популярное на сайте

ОдессаОдесса

КиевКиев



















