Продам 1-комнатную квартиру
Киев, р-н Шевченковский, Вавілових, 9-11
ID: 5315098
3 701 683 грн
(72 582 за м2)
Кол-во комнат
1
Этаж
22/25
Тип стен
кирпич
Общая площадь
51 м2
Кухня площадь
18 м2
Состояние
жилое
Тип недвижимости
Вторичный рынок
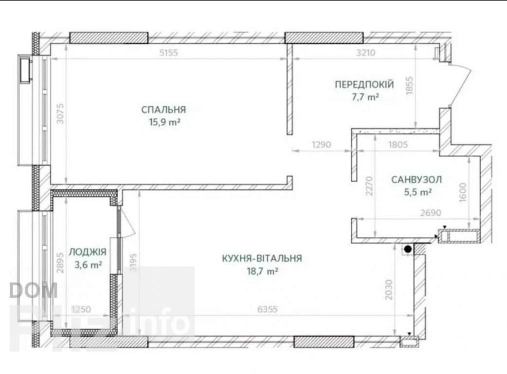
Продається однокімнатна квартира у сучасному житловому комплексі комфорт-класу від надійного забудовника Ковальська Нерухомість. Деталі про ЖК та більшість фото можна знайти на сайті забудовника. Площа: 51.4 кв.м, зручне планування — одна спальня і велика кухня-студія (євродвушка). Поверх: 22-й (секція 3), квартира з чудовим панорамним видом на парки Сирецький гай, Дубки та Сирецький дендрологічний парк. Балкон: Є простора лоджія. Особливості комплексу: - Монолітно-каркасна технологія будівництва з цегляним наповненням. - Стан квартири — після будівельників, дає можливість новим власникам реалізувати свій дизайнерський смак. - Комплекс побудований за концепцією «двір без авто» з власним внутрішнім озелененим двором, зонами відпочинку та дитячими й спортивними майданчиками. - Цілодобова охорона, система відеоспостереження та консьєрж-сервіс для вашого комфорту і безпеки. - Сучасне лобі, спроектоване одним із кращих дизайнерів світу. Інфраструктура: власна дахова газова котельня для безперебійного опалення, підземний дворівневий паркінг з ліфтом прямо до вашого поверху. Локація: - Вдале розташування — до метро «Сирець» 8 хвилин пішки, до «Дорогожичі» — 13 хвилин. До центру міста — 20 хвилин авто/транспортом. - Поруч дитячі садки, школи, жодних промислових обєктів. Комісія 5%
Создано : 06.03.2026
3 701 683 грн
(72 582 за м2)
84 500 $
(1 657 за м2)
Олександр
посредник
Создано : 06.03.2026
Просмотренные
Продам видовую 1к квартиру в ЖК POETICA 2 (друга колекція), вул. Дегтярівська 25. 1 дім, 2я секція, 12 поверх, планування 1г, 43кв.м. Вікна з панорамним видом на парк Пушкіна(Багряного) та двір першої колекції....
06.03.2026
Комнат
1
Этаж:
12/24
Общая
42 м2
Кухня
12 м2
2 935 062 грн
Продаж 1-к квартири 47.1 м2 на 13 поверсі в зданому будинку в ЖК Багговутівський. Вулиця Загорівська 17-21. Є ОСББ. Квартира має роздільне планування. Ремонт під чистову обробку. У будинку є власна котельня газ...
06.03.2026
Комнат
1
Этаж:
13/25
Общая
47 м2
Кухня
14 м2
3 022 676 грн
!!!Можливий продаж по ЄОселя ( ціна по єоселя 105 000) Поділ. Метро 5 хв пішки. 1к.48м2 з гарним видом на Поділ, що потопає в зелені. ЖК 044, Кирилівська 37А. Метро Тараса Шевченка, Контрактова площа 5 хв. пі...
06.03.2026
Комнат
1
Этаж:
5/8
Общая
48 м2
Кухня
20 м2
4 161 656 грн
Продам 1-кімнатну квартиру в ЖК «Poetica 2» секція 3 по вул. Дегтярівська, 25, Шевченківський р-н. Площа 42,2 м2. 13 поверх. Комплекс бізнес-класу. Видова! Дуже зручне планування, з великими панорамними вікнам...
06.03.2026
Комнат
1
Этаж:
13/25
Общая
42 м2
Кухня
11 м2
2 847 010 грн
Популярное на сайте

ОдессаОдесса

КиевКиев











