Продам 2-комнатную квартиру
Одесса, р-н Приморский, Южная, д. 28
ID: 5315316
1 290 011 грн
(39 091 за м2)
Кол-во комнат
от 2 до 2
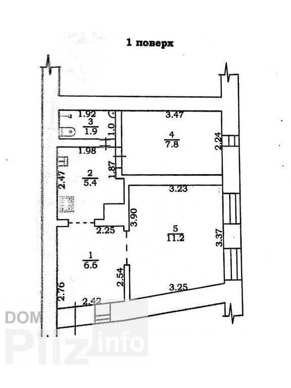
Этаж
1/3
Тип стен
ракушняк
Общая площадь
33 м2
Жилая площадь
18 м2
Кухня площадь
10 м2
Состояние
с ремонтом
Тип недвижимости
Вторичный рынок
Южная / Колонтаевская, рекомендуем купить прекрасную квартиру, расположенную на 1 этаже крепкого старинного 3-этажного дома, 33/18/10 кв.м, две небольшие солнечные раздельные комнаты (12 и 8 кв.м), удобная кухня открытого типа, сан. узел с душевой системой, стильный современный дизайн интерьера, абсолютно новый капитальный ремонт с заменой всех коммуникационных систем, заменена вся электропроводка, выровнены полы и уложен красивый надежный ламинат, система «теплый пол» в ванной комнате, новые трубы подачи и отвода воды, установлены шумоизоляция в спальне, бойлер, кондиционер, полностью укомплектована мебелью и бытовой техникой, окна в тихий уютный аутентичный одесский дворик, отличная современная квартира в начале Молдаванки в двух шагах от Соборной площади и Дерибасовской!
Создано : 09.03.2026
1 290 011 грн
(39 091 за м2)
29 500 $
(894 за м2)
Алексей, АН "Александр-N"
посредник
Создано : 09.03.2026
Просмотренные
Коблевская / Дворянская, продам двухуровневую квартиру, расположенную на полноценных 2 и 3 этажах крепкого старинного 3-этажного дома, 31/21/7 кв.м, на первом этаже расположены комната 12 кв.м, сан. узел с ванн...
02.02.2026
Комнат
2
Этаж:
2/3
Общая
31 м2
Жилая
21 м2
Кухня
7 м2
1 399 334 грн
В продажу 1 кімн квартира розташована на 1-му поверсі 2-поверхового будинку, загальна площа — 40 кв. м.Житловий чистий стан: встановлені МПО, всі двері нові. Велика світла кімната квадратної форми площею 20 кв....
08.01.2026
Комнат
2
Этаж:
1/2
Общая
40 м2
Жилая
21 м2
Кухня
5 м2
1 530 522 грн
Ризовская (между Градоначальницкой и Раскидайловской), 3/4 эт., продам квартиру в крепком старинном доме, 30/20/5 кв. м, две раздельные комнаты (12 + 8 кв. м), сан. узел совмещен с душем, современный ремонт, оч...
02.01.2026
Комнат
2
Этаж:
3/4
Общая
30 м2
Жилая
20 м2
Кухня
5 м2
1 311 876 грн
Двухуровневая 2 к Преображенская/ Жуковского . 2/2 эт. Общая площадь 24 м. Квартира в жилом состоянии интересной планировки. На 1 ом уровне комната и сан узел ( совмещен). На втором уровне комната и кухня. Двор...
29.12.2025
Комнат
2
Этаж:
1/2
Общая
24 м2
Жилая
17 м2
Кухня
6 м2
743 396 грн
Популярное на сайте

ОдессаОдесса

КиевКиев
















