Сдам долгосрочно офисное помещение
Киев, р-н Шевченковский, Телиги Елены ул., 6
ID: 5322071
1 022 140 грн
Кол-во помещений
8
Этаж
2/5
Тип стен
кирпич
Общая площадь
1400 м2
Состояние
жилое
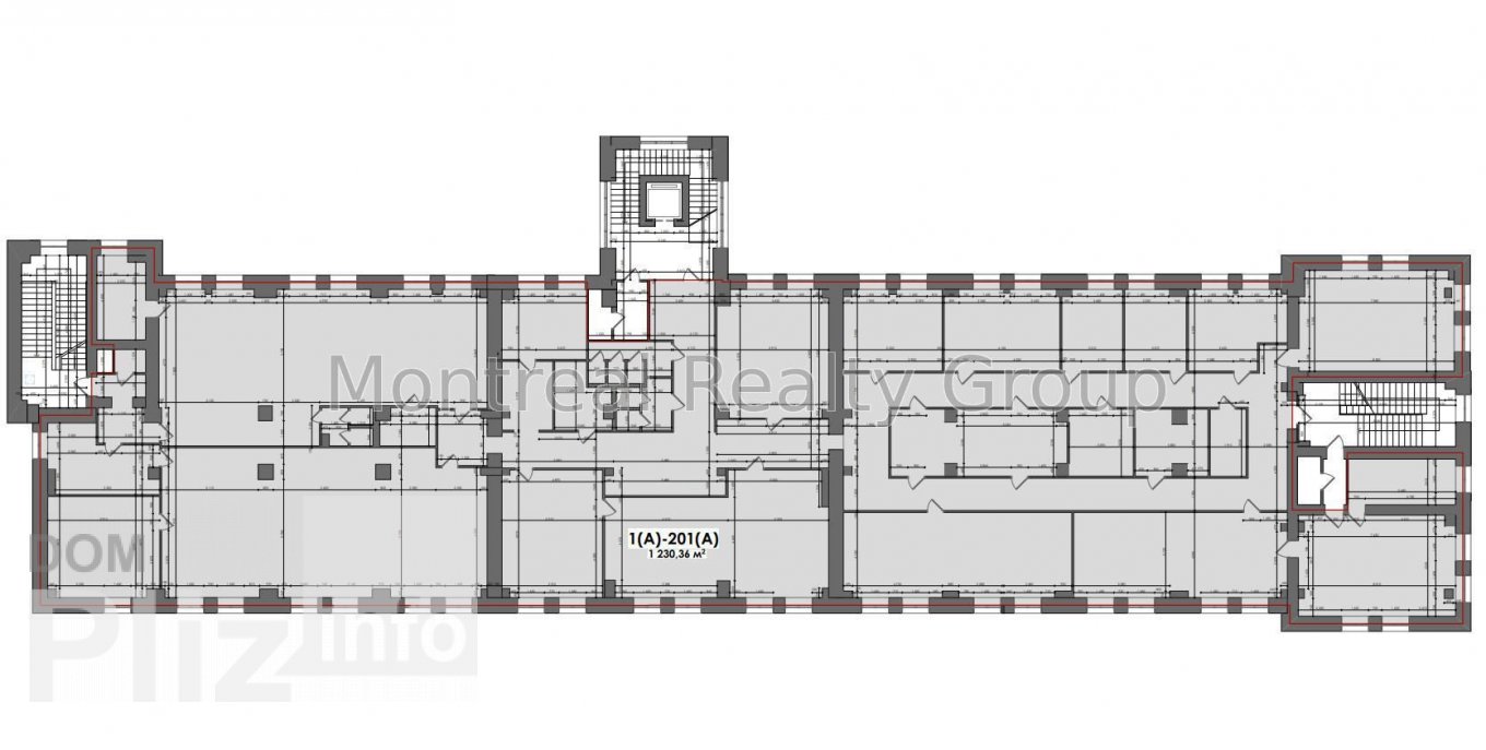
Аренда просторного офиса в Бизнес Центре класса " В " по адресу улица Елены Телиги. Этаж 2/5 этажного нежилого здания. Общая площадь офиса 1 390.31 м2. Фотографии и планировка соответствуют реальности. Планировка - open space + рабочие зоны + кабинеты/переговорные, кухня, санузлы, кладовки, серверная. Состояния - хороший офисный ремонт. Офис оснащен всем необходимым для комфортной и безопасной работы. Отличная транспортная развязка, в пешей доступности остановка общественного транспорта и станция метро Дорогожичи 5 минут пешком.Оснащения Бизнес Центра:1. Система приточно-вытяжной вентиляции.2. Система кондиционирования.3. Автономное отопление.4. Оптоволоконные линии связи.5. Система контроля доступа.6. Противопожарная система безопасности.7. Круглосуточная физическая охрана.8. Видеонаблюдение (периметр, холл, лифты, места общего пользования, парковка).9. Лифты - 4 шт., фирмы OTIS.10. Большая наземная парковка.11. Генератор.Коммерческие условия:Арендная ставка - 16.72 $/м2 с эксплуатации + НДС + коммунальные услуги.Номер оголошення на сайті компанії: RC-163-195-DP.
Обновлено: 04.04.2026
1 022 140 грн
23 250 $
Радион Попов
посредник
Обновлено: 04.04.2026
Просмотренные
Аренда просторного офиса в центре Киева в Бизнес Центре класса " В + " по адресу улица Дегтяревская. Этаж 6/6 этажного нежилого здания. Общая площадь офиса 800 м2. Фотографии и планировка соответствуют реальнос...
30.04.2026
Этаж:
6/6
Общая
800 м2
659 445 грн
Здам офісне приміщення в самому центрі столиці, на перетині вулиць Володимирської та Великої Житомирської, Площа 46м, 3 кабінета, кухня та санвузол. 2/4 поверх. Житловий фонд. Будинок царський: товсті стіни...
30.04.2026
Этаж:
2/4
Общая
46 м2
30 000 грн
Аренда просторного офиса в центре Киева по адресу улица Ирининская. Этаж 2/18 этажного здания. Общая площадь офиса 356 м2. Фотографии и планировка соответствуют реальности. Планировка - рабочие зоны + кабинеты/...
28.04.2026
Этаж:
2/12
Общая
360 м2
219 815 грн
Аренда отдельно стоящего офисного здания в центре Киева по адресу улица Сечевых Стрельцов ( Артема ). 3 этажа ( 2 этажа + мансарда ). Общая площадь здания 772 м2. Фотографии и планировки соответствуют реальност...
11.04.2026
Этаж:
1/3
Общая
800 м2
835 297 грн
Популярное на сайте

ОдессаОдесса

КиевКиев























