Сдам долгосрочно офисное помещение
Киев, р-н Подольский, Контрактовая пл., 9
ID: 5322124
527 556 грн
Кол-во помещений
5
Этаж
2/5
Тип стен
кирпич
Общая площадь
500 м2
Состояние
жилое
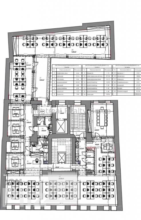
Аренда стильного офиса в центре Киева в Бизнес Центре класса " В " по адресу Контрактовая площадь. Этаж 2/5 этажного нежилого здания. Общая площадь офиса 501 м2. Фотографии и планировка соответствуют реальности. Планировка - open space + кабинеты/переговорные, кухня, санузлы, кладовки, серверная. Состояния - стильный ремонт и мебель. Офис оснащен всем необходимым для комфортной и безопасной работы. Отличная транспортная развязка, в пешей доступности остановка общественного транпорта и станция метро Контрактовая Площадь 1 минута пешком.Оснащения Бизнес Центра:1. Система кондиционирования.2. Система приточно вытяжной вентиляции.3. Автономное отопление.4. Оптоволоконные линии связи.5. Система контроля доступа.6. Противопожарная система безопасности.7. Круглосуточная физическая охрана.8. Видеонаблюдение.9. Лифты - 2 шт., фирмы THYSSENKRUPP.10. Генератор.Коммерческие условия:Арендная ставка - 12 000 $ с эксплуатации + НДС + коммунальные услуги.Номер оголошення на сайті компанії: RC-174-657-DP.
Обновлено: 04.04.2026
527 556 грн
12 000 $
Радион Попов
посредник
Обновлено: 04.04.2026
Просмотренные
Аренда просторного офиса на Подоле в новом Бизнес Центре класса " В + " по адресу улица Воздвиженская. Этаж 3-4/6 этажного нежилого здания. Общая площадь офиса 480 м2. Фотографии и планировка соответствуют реал...
04.04.2026
Этаж:
3/6
Общая
500 м2
263 778 грн
Аренда современного офиса в центре Киева в Бизнес Центре класса " В + " по адресу улица Ильинская. Этаж 5/6 этажного нежилого здания. Полезная площадь офиса 425.5 м2. Арендуемая площадь 489.33 м2 ( 15 % коэффиц...
04.04.2026
Этаж:
5/6
Общая
500 м2
369 289 грн
Аренда современного офиса в центре Киева на Подоле в Бизнес Центре класса " В + " по адресу улица Спасская. Этаж 5/5 этажного нежилого здания. Общая площадь офиса 507 м2. Фотографии и планировка соответсвуют ре...
04.04.2026
Этаж:
5/5
Общая
500 м2
492 386 грн
Аренда современного офиса в центре Киева в Бизнес Центре класса " А " по адресу улица Нижний Вал. Этаж 2/6 этажного нежилого здания. Общая площадь офиса 500 м2. Фотографии и планировка соответствуют реальности....
04.04.2026
Этаж:
2/6
Общая
500 м2
395 667 грн
Популярное на сайте

ОдессаОдесса

КиевКиев
























