Сдам долгосрочно офисное помещение
Киев, р-н Голосеевский, Семьи Праховых ул., 58/10
ID: 5322283
428 639 грн
Кол-во помещений
8
Этаж
5/7
Тип стен
кирпич
Общая площадь
440 м2
Состояние
жилое
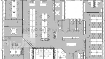
Аренда современного офиса в центре Киева в Бизнес Центре класса " В + " по адресу улица Семьи Праховых ( Гайдара ). Этаж 5/7 этажного нежилого здания. Общая площадь офиса 441.73 м2. Фотографии и планировка соответствуют реальности. Планировка - open sрace + рабочие зоны + кабинеты/переговорные, кухня, санузлы, кладовки, серверная. Состояния - современный ремонт. Офис оснащен всем необходимым для комфортной и безопасной работы. Отличная транспортная развязка, в пешей доступности остановка общественного транспорта и станции метро Олимпийская и Университет 10 минут пешком.Оснащения Бизнес Центра:1. Система приточно-вытяжной вентиляции.2. Система кондиционирования.3. Оптоволоконные линии связи.4. Система контроля доступа.5. Противопожарная система безопасности.6. Круглосуточная физическая охрана.7. Видеонаблюдение (периметр, холл, лифты, места общего пользования, парковка).8. Лифты - 3 шт., фирмы OTIS.9. Большая наземная парковка.10. Генератор.Коммерческие условия:Арендная ставка - 22 $/м2 с эксплуатации + НДС + коммунальные услуги.Номер оголошення на сайті компанії: RC-146-256-DP.
Обновлено: 04.04.2026
428 639 грн
9 750 $
Радион Попов
посредник
Обновлено: 04.04.2026
Просмотренные
Оренда офісу 450 м.кв. в бізнес центрі РЕЛЕ в Голосіївському районі за адресою: проспект Голосіївський, 132, метро Виставковий центр.В офісі зроблений сучасний ремонт, скляні та гіпсокартонні перегородки.Велики...
24.04.2026
Этаж:
6/16
Общая
450 м2
313 200 грн
Аренда просторного офиса в центре Киева в Бизнес Центре класса " В " по адресу улица Саксаганского. Этаж 12/13 этажного нежилого здания. Общая площадь офиса 452.3 м2. Фотографии и планировка соответствуют реаль...
04.04.2026
Этаж:
12/13
Общая
450 м2
241 797 грн
Аренда стильного офиса в центре Киева в Бизнес Центре класса " В + " по адресу улица Семьи Праховых ( Гайдара ). Этаж 1/7 этажного нежилого здания. Общая площадь офиса 425.12 м2. Фотографии и планировка соответ...
04.04.2026
Этаж:
1/7
Общая
430 м2
404 460 грн
Аренда офиса в центре Киева в Бизнес Центре класса " А " по адресу Саксаганского. Этаж 3/10 этажного нежилого здания. Общая площадь офиса 430.33 м2. Фотографии и планировка соответствуют реальности. Планировка ...
04.04.2026
Этаж:
3/10
Общая
430 м2
296 750 грн
Популярное на сайте

ОдессаОдесса

КиевКиев
















