Сдам долгосрочно офисное помещение
Киев, р-н Печерский, Леси Украинки бул., 23
ID: 5322686
206 391 грн
Кол-во помещений
6
Этаж
4/5
Тип стен
кирпич
Общая площадь
240 м2
Состояние
жилое
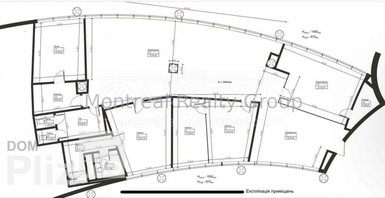
Аренда современного офиса в центре Киева в Бизнес Центре класса " В + " по адресу Бульвар Леси Украинки. Этаж 4/5 этажного нежилого здания. Общая площадь офиса 232 м2. Фотографии и планировка соответствуют реальности. Планировка - open space + рабочие зоны + кабинеты/переговорные, кухня, санузлы, кладовки, серверная. Состояния - современный ремонт и мебель. Офис оснащен всем необходимым для комфортной и безопасной работы. Отличная транспортная развязка, в пешей доступности остановка общественного транспорта и станция метро Печерская 5 минут пешком.Оснащения Бизнес Центра:1. Система кондиционирования.2. Система приточно-вытяжной вентиляции.3. Оптоволоконные линии связи.4. Система контроля доступа.5. Противопожарная система безопасности.6. Круглосуточная физическая охрана.7. Видеонаблюдение.8. Лифты - 1 шт., фирмы KONE.9. Подземный паркинг и наземная парковка.Коммерческие условия:Арендная ставка - 20 $/м2 + коммунальные услуги.Номер оголошення на сайті компанії: RC-108-984-DP.
Обновлено: 04.04.2026
206 391 грн
4 700 $
Радион Попов
посредник
Обновлено: 04.04.2026
Просмотренные
Шикарний ВЕЛИКИЙ офіс площа: 240.7м. Кабінети-170м. Кухня-20м., 6\6 поверхової цегляної з ліфтом. Житловий фонд, Центр, Метро Кловська, вул. Мечнікова 10, Євро ремонт. Домофон. Паркування. Камін.Відео на YOUTUB...
Кловская
Кловская
23.04.2026
Этаж:
5/5
Общая
247 м2
Жилая
144 м2
82 556 грн
9-кабінетів Центр м. Києва. Кловська. Інтернет-IT. без% Господар.Шикарний ВЕЛИКИЙ офіс площа: 240.7м. Кабінети-170м. Кухня-20м., 6\6 поверхової цегляної з ліфтом. Житловий фонд, Центр, Метро Кловська, вул. Мечн...
Кловская
Кловская
23.04.2026
Этаж:
6/6
Общая
247 м2
Жилая
144 м2
82 556 грн
Аренда современного офиса в центре Киева по адресу улица Иоанна Павла II ( Патриса Лумумбы ). Этаж 2/2 этажного нежилого здания. Общая площадь офиса 222 м2. Фотографии и планировка соответствуют реальности. Пла...
11.04.2026
Этаж:
2/2
Общая
230 м2
504 998 грн
Шикарний ВЕЛИКИЙ офіс площа: 247 м. \ Житлова - 170 м. \ Кухня-20 м.кв., 6 поверх 6 поверхового цегляного з ліфтом. Житловий фонд, Центр, Метро Кловська, вул. Мечнікова 10, Євро ремонт. Домофон. Паркування. Кам...
Кловская
Кловская
24.03.2026
Этаж:
6/6
Общая
247 м2
Жилая
168 м2
82 000 грн
Популярное на сайте

ОдессаОдесса

КиевКиев























