Продам 2-комнатную квартиру
Кременчуг, Проспект Свободи
ID: 5324047
2 988 002 грн
(60 980 за м2)
Кол-во комнат
2
Этаж
2/9
Тип стен
кирпич
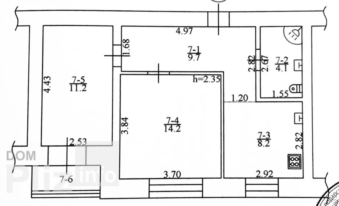
Общая площадь
49 м2
Кухня площадь
8 м2
Состояние
жилое
Тип недвижимости
Вторичный рынок
Пропоную у продаж затишну квартиру з якісним ремонтом в нагорній частині міста. Зручно перепланована, є достатньо велика кухня, затишна зала і спальня. В оздобленні використані якісні матеріали, виконаний високоякісний сучасний ремонт. Все продумано для затишного та комфортного проживання. В квартирі повністю замінена: - сантехніка з виводом під бойлер та посудомийну машину; - електрика та водний кабель; - труби опалення та радіатори; - підлога: спальня/зала - ламінат; кухняu/ванна кімната/коридорu, лоджія - плитка з керамограниту. В квартирі встановлені: - душова кабіна; - сучасні міжкімнатні двері; - пластикові 2-х камерні вікна (з функцією захисту від дитини); - прохідні вимикачі для комфорту, WiFi роутер та домофон; - електрична тепла підлога на кухні; - вбудовані шафи в коридорі та спальні; - карнизи зі шторами; - виходи під монтаж кондиціонерів; - двоспальне ліжко з ортопедичним матрацом; - підвісна сушка для білизни на лоджії. Додатково зроблено зовнішнє утеплення, квартира дуже тепла. В будинку встановлений індивідуальний лічильник тепла, що дає можливість платити менше за опалення. Вікна квартири виходять на соснові дерева та ранкове сонце. Це ідеальний простір для життя. Поруч три дитячі садочки, один з яких знаходиться у дворі, школа за 5 хвилин ходьби, декілька продуктових магазинів, відділення Нової пошти та банку. Неподалік знаходиться зупинка міського транспорту, адже до зупинки Водоканал менше 7 хвилин, а до зупинки 18 маршруту можна дійти за 5 хвилин. Комфортний та затишний двір з дитячими ігровими майданчиками, а якщо ви бажаєте займатися спортом, то поруч є стадіон та спортивні тренажери. Додатково оплачуються послуги агентства нерухомості.
Обновлено: 11.04.2026
2 988 002 грн
(60 980 за м2)
68 000 $
(1 388 за м2)
Юлія
посредник
Обновлено: 11.04.2026
Просмотренные
Продаж квартири на Молодіжному. Під ремонт, частково виконана косметика. Додатково оплачуються послуги агентства нерухомості....
24.04.2026
Комнат
2
Этаж:
2/2
Общая
44 м2
Кухня
7 м2
659 118 грн
2-кімнатна квартира в Нагірній частині міста. Можливий продаж по сертифікату. Чеський проєкт. Світла квартира. Нагірна частина міста. Поблизу парк.. Вид обєкта: Вторинний ринок;Тип будинку: Житловий фонд 91-200...
23.04.2026
Комнат
2
Этаж:
5/5
Общая
48 м2
Кухня
6 м2
1 889 472 грн
Двокімнатна квартира на Ревівці. Продається квартира в районі Ревівки у житловому стані. Виконано косметичний ремонт, квартира готова до комфортного проживання. Нещодавно замінено вікна та вхідні двері. Однією ...
18.04.2026
Комнат
2
Этаж:
1/2
Общая
45 м2
Кухня
7 м2
1 120 676 грн
2к квартира з технікою — ЗАХОДЬ І ЖИВИ! 3 поверх, ТОП локація Продається затишна 2-кімнатна квартира на вул. Героїв УПА Ідеальний варіант без зайвих вкладень! 3u002F5 поверх — найзручніший Косметичний ремонт Вс...
18.04.2026
Комнат
2
Этаж:
3/5
Общая
44 м2
Кухня
44 м2
1 318 236 грн
Популярное на сайте

ОдессаОдесса

КиевКиев






















