Продам 1-комнатную квартиру
Полтава, р-н Подольский, Головка
ID: 5325999
1 661 112 грн
(33 222 за м2)
Кол-во комнат
1
Этаж
5/10
Тип стен
кирпич
Общая площадь
50 м2
Кухня площадь
6 м2
Состояние
жилое
Тип недвижимости
Вторичный рынок
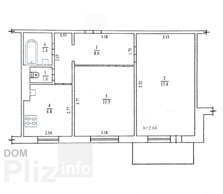
Продам 2 кімнатна квартира 50,7м2 Левада., середній 5 поверх (із 10-ти), не кутова, тепла, вікна у тихій двір. Порядні спокійні сусіди. Зручне розташування, розвинена інфраструктура: поряд супермаркети, зупинки, 2 школи, 2 садочка, дитяча лікарня, поліклініка, річка, ліс, парк. Стан задовільний, житловий. Меблі можу залишити. Готова під здачу в оренду або прожиття. Труби замінені на пластикові. Вікна замінені в кухні та спальні. Загальний стан дивіться по відеоогляду. У власності більше 3-х років, тех. паспорт новий. Готівковий та безготівковий розрахунок. Вид обєкта: Вторинний ринок; Тип будинку: Житловий фонд 91-2000-і;Назва ЖК: левада;Тип стін: Панельний;Планування: Роздільна;Cанвузол: Роздільний;Опалення: Централізоване;Ремонт: Житловий стан;Меблювання: Так;Комфорт: Меблі на кухні, Ліфт, Ванна, Балкон, лоджія; Інфраструктура (до 500 метрів): Парк, зелена зона, Відділення банку, банкомат, Ресторан, кафе, Ринок, Зупинка транспорту, Супермаркет, ТРЦ, Відділення пошти, Дитячий садок, Лікарня, поліклініка, Школа, Дитячий майданчик, Аптека;Ландшафт (до 1 км.): Парк, Ліс, Річка; АНГалерея Нерухомості
Создано : 24.03.2026
1 661 112 грн
(33 222 за м2)
37 900 $
(758 за м2)
Яна
посредник
Создано : 24.03.2026
Просмотренные
Продаж квартири Полтава.Продається 1-кімнатна квартира, 42.5 кв.м, м. Полтава, район Левада Пропонується до продажу світла 1-кімнатна квартира в новому цегляному будинку в затишному районі Левада, м. Полтава. З...
24.03.2026
Комнат
1
Этаж:
8/10
Общая
42 м2
Кухня
10 м2
1 972 296 грн
квартира Полтава левада, вул. О. Бідного.Квартира в новому цегляному будинку на Леваді, продаж від власників, автономне опалення, підігрів води двоконтурний котел, ремонт робили для себе. Продається з меблями т...
24.03.2026
Комнат
1
Этаж:
7/10
Общая
58 м2
Кухня
23 м2
2 629 728 грн
Квартира в новобудові Квартира розташована на 3 поверсі 9 поверхового будинку. Не кутова. Утеплена ззовні. Будинок цегляний. Квартира загальною площею 41.3 кв.м. Складається з 1 кімнати житловою площею 14.8. кв...
24.03.2026
Комнат
1
Этаж:
3/10
Общая
41 м2
Жилая
14 м2
Кухня
12 м2
2 585 899 грн
Однокімнатна новобудова. Однокімнатна Головка , 15. 4 поверх, 45 квадратів. Індивідуальне опалення. Не кутова. Шуму та дороги немає. Продається повністю з мебелью та технікою.. Вид обєкта: Новобудова; Тип буди...
24.03.2026
Комнат
1
Этаж:
4/10
Общая
45 м2
Кухня
9 м2
2 542 070 грн
Популярное на сайте

ОдессаОдесса

КиевКиев

















