Продам 1-комнатную квартиру
Киев, р-н Шевченковский, Вавілових, 9-11
ID: 5326872
3 714 358 грн
(72 831 за м2)
Кол-во комнат
1
Этаж
22/25
Тип стен
кирпич
Общая площадь
51 м2
Кухня площадь
18 м2
Состояние
жилое
Тип недвижимости
Вторичный рынок
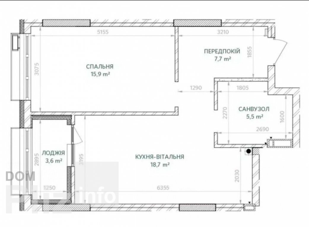
Продається однокімнатна квартира у сучасному житловому комплексі комфорт-класу від надійного забудовника Ковальська Нерухомість. Деталі про ЖК та більшість фото можна знайти на сайті забудовника. Площа: 51.4 кв.м, зручне планування — одна спальня і велика кухня-студія (євродвушка). Поверх: 22-й (секція 3), квартира з чудовим панорамним видом на парки Сирецький гай, Дубки та Сирецький дендрологічний парк. Балкон: Є простора лоджія. Особливості комплексу: - Монолітно-каркасна технологія будівництва з цегляним наповненням. - Стан квартири — після будівельників, дає можливість новим власникам реалізувати свій дизайнерський смак. - Комплекс побудований за концепцією «двір без авто» з власним внутрішнім озелененим двором, зонами відпочинку та дитячими й спортивними майданчиками. - Цілодобова охорона, система відеоспостереження та консьєрж-сервіс для вашого комфорту і безпеки. - Сучасне лобі, спроектоване одним із кращих дизайнерів світу. Інфраструктура: власна дахова газова котельня для безперебійного опалення, підземний дворівневий паркінг з ліфтом прямо до вашого поверху. Локація: - Вдале розташування — до метро «Сирець» 8 хвилин пішки, до «Дорогожичі» — 13 хвилин. До центру міста — 20 хвилин авто/транспортом. - Поруч дитячі садки, школи, жодних промислових обєктів. Комісія 5%
Обновлено: 22.04.2026
3 714 358 грн
(72 831 за м2)
84 500 $
(1 657 за м2)
Олександр
посредник
Обновлено: 22.04.2026
Просмотренные
Продається 1кімнатна квартира 55м в ЖК «Сирецький парк» без ремонту, чистий аркуш для вашої мрії Світла, простора, із класичною функціональною плануванням кухня та кімната правильних форм, лоджія. Висота стелі ...
13.05.2026
Комнат
1
Этаж:
2/6
Общая
55 м2
Жилая
23 м2
Кухня
13 м2
2 448 267 грн
Продам 1 кімнатну квартиру, ЖК Будинок на Вавілових, вул. Вавілових, 11, Шевченківський район. Площа 41/20/18, 2/9. Будинок зданий в експлуатацію Ідеальний варіант для комфортного життя або інвестиції під...
13.05.2026
Комнат
1
Этаж:
2/9
Общая
41 м2
Жилая
20 м2
Кухня
18 м2
3 428 638 грн
Продам 1 кімнатну квартиру 50 м2 в ЖК me 5 з 8 поверхів 4 квартири на поверсі Ліфт в паркінг Квартира з продуманим плануванням у дві зони (типу “розпашонка”). Житло має зручне та функціональне зонування: кухня-...
13.05.2026
Комнат
1
Этаж:
5/8
Общая
50 м2
Кухня
19 м2
5 494 613 грн
Продам 1 кімнатну квартиру, вул. Вячеслава Чорновола, 27, Лукянівка, Шевченківський район Площа 45/16/16м, 12/16 поверх Теплий будинок, закрита територія Квартира з ремонтом. Є все необхідне для комфотного ...
13.05.2026
Комнат
1
Этаж:
12/16
Общая
45 м2
Жилая
18 м2
Кухня
16 м2
6 329 794 грн
Популярное на сайте

ОдессаОдесса

КиевКиев











