Продам 2-комнатную квартиру
Одесса, р-н Киевский, Дача Ковалевского ул.
ID: 5333883
1 676 408 грн
(31 630 за м2)
Кол-во комнат
2
Этаж
2/2
Тип стен
кирпич
Общая площадь
53 м2
Жилая площадь
25.1 м2
Кухня площадь
15 м2
Состояние
жилое
Тип недвижимости
Вторичный рынок
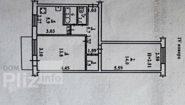
Продам в Одессе 2-х комнатную сталинку у моря, 16-я станция Большого Фонтана. 2-й этаж/2-х этажного дома. Вид моря, восточная сторона. Общая площадь 53м2, жилая 25м2, кухня 15м2. Под ремонт, балкон из спальни, просторный холл, санузел (после капремонта) совместный современная облицовка, высота потолков 3.20м., в парадной 5 квартир, есть свое место под гараж в общем дворе, место под хозпомещение, возможность достройки 3-го мансардного этажа 53м2 так же с видом моря, возможность обустройства собственного входа. Рядом магазин, удобная транспортная развязка. Идеальный вариант для уютной и успешной жизни или под бизнес. Выгодная цена. Звоните...Смотрите...Покупайте...Возможна покупка в кредит от 10% годовых до 20 лет. Посредникам, просьба не беспокоить.
Обновлено: 22.04.2026
1 676 408 грн
(31 630 за м2)
38 000 $
(717 за м2)
АН Премьер Королева, 33
посредник
Обновлено: 22.04.2026
Просмотренные
В продаже двухкомнатная квартира в Одесса, Киевский район, ул. Академика Королёва. Удобный район с развитой инфраструктурой и отличной транспортной развязкой. Квартира расположена на 4 этаже 5-этажного дома. Об...
22.04.2026
Комнат
2
Этаж:
4/5
Общая
45 м2
Жилая
27.8 м2
Кухня
5.9 м2
1 544 060 грн
Продажа двухкомнатной квартиры в Киевском районе. Квартира в хорошем жилом состоянии. Общая площадь 49 м2. Светлая и просторная. Комнаты раздельные, раздельный санузел. Кухня 7м2. Из гостевой комнаты есть выход...
22.04.2026
Комнат
2
Этаж:
5/9
Общая
48.6 м2
Жилая
29.4 м2
Кухня
6.7 м2
1 720 524 грн
Продаж 2 кімнатної квартири. Левітана. Чешка. Газ. Капремонт 2016 року. Вбудовані меблі, побутова техніка, кондиціонер, бойлер. Балкон засклений. Столярка натуральне дерево. Металопластикові вікна. Поруч із буд...
20.04.2026
Комнат
2
Этаж:
7/9
Общая
50 м2
Жилая
30 м2
Кухня
8 м2
1 852 872 грн
В продаже 2-х комнатная квартира в новом микрорайоне. Односторонняя, две раздельные комнаты и просторная кухня. Расположена на первом этаже, утеплена европластом. В квартире выполнен качественный ремонт, которы...
22.04.2026
Комнат
2
Этаж:
1/16
Общая
63 м2
2 205 800 грн
Популярное на сайте

ОдессаОдесса

КиевКиев










