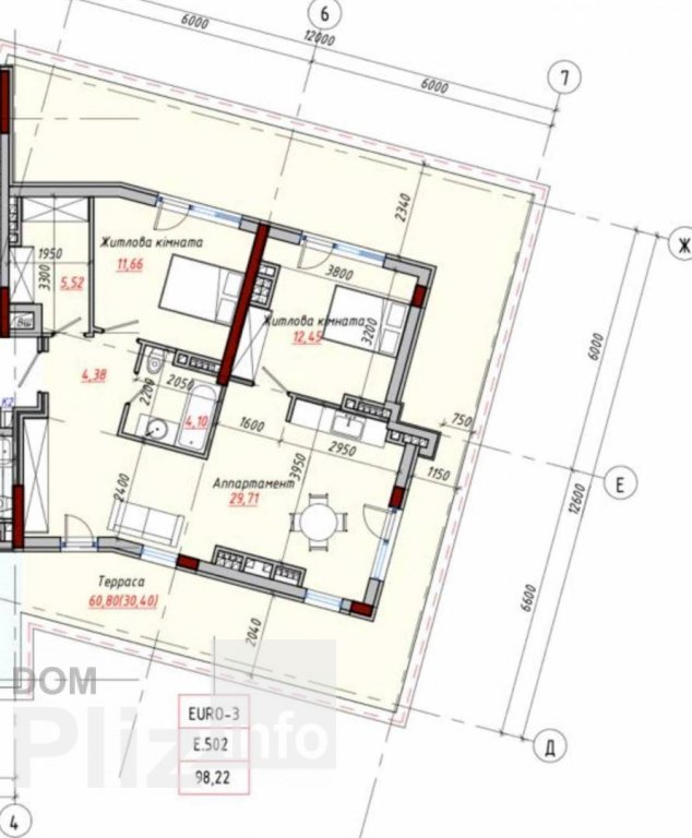
Продам 2-комнатную квартиру
Одесса, р-н Киевский, Дачная ул.
ID: 5333990
5 932 062 грн
(60 531 за м2)
Кол-во комнат
2
Этаж
5/5
Тип стен
кирпич
Общая площадь
98 м2
Жилая площадь
23 м2
Кухня площадь
30 м2
Состояние
жилое
Тип недвижимости
Вторичный рынок
В продаже 2-комнатный пентхаус с большой террасой в современном жилом комплексе. Удачное расположение — всего несколько минут пешком до пляжей, что позволяет наслаждаться морем в любое время. Пространство наполнено светом и воздухом, а терраса станет главным местом отдыха с красивыми видами. Дом сдан, можно сразу начинать ремонт и воплощать свой дизайн-проект. Уникальное предложение для тех, кто ищет комфорт у моря в новом доме. Посредникам, просьба не беспокоить.
Обновлено: 24.04.2026
5 932 062 грн
(60 531 за м2)
135 000 $
(1 378 за м2)
АН "Премьер" / НОВОСТРОЙ
посредник
Обновлено: 24.04.2026
Просмотренные
В продаже стильная 2-комнатная квартира с просторной террасой в жилом комплексе «Пространство на Дачной».Комфортный 2-й этаж 6-этажного дома. Общая площадь — 89 м². Удобная планировка: две отдельные спальни, дв...
24.04.2026
Комнат
2
Этаж:
2/6
Общая
89 м2
Жилая
30 м2
Кухня
23 м2
5 233 397 грн
Продаётся двухкомнатная квартира в ЖК «Фонтан», расположенная на 2-м этаже, общей площадью 94,7 м². Удобная и продуманная планировка: две раздельные комнаты площадью 28,5 м² и 24,2 м², просторный коридор 8,9 м²...
24.04.2026
Комнат
2
Этаж:
2/22
Общая
94.7 м2
Жилая
38 м2
Кухня
24 м2
3 822 884 грн
В продаже двухкомнатная квартира на пр-т. Ак. Глушко. Квартира расположена на 21 этаже, 24- этажного дома. Общая площадь 104 м.кв. Панорамный вид на море. Квартира односторонняя, тёплая. Счетчики на тепло, свет...
24.04.2026
Комнат
2
Этаж:
21/24
Общая
104 м2
Жилая
82 м2
Кухня
22 м2
4 877 473 грн
Предлагается к продаже просторная квартира в клубном доме премиум-класса «Сапфир» — идеальное предложение для тех, кто ценит комфорт, статус и свободу планировочных решений. Общая площадь 95,7 м² позволяет реал...
24.04.2026
Комнат
2
Этаж:
1/5
Общая
96 м2
Жилая
62 м2
Кухня
25 м2
6 591 180 грн
Популярное на сайте

ОдессаОдесса

КиевКиев











