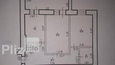
Предлагается к продаже трехкомнатная квартира в новом сданном доме на Марсельской. Общая площадь 108 кв.м, квартира двухсторонняя, современная планировка: три раздельные комнаты и большая кухня, два санузла. В ...
18.04.2026
Комнат
3
Этаж:
3/21
Общая
108 м2
4 363 680 грн
Продам 1-но комнатную квартиру в новом доме. Приморский район, ул. Солнечная. Квартира расположена на 5 этаже 16 этажного дома, общей площадью 57 м.кв. большая комната 25 м.кв., просторная кухня 14 м.кв. и вели...
18.04.2026
Комнат
1
Этаж:
5/16
Общая
57 м2
Жилая
25 м2
Кухня
13.7 м2
3 490 944 грн
Предлагается к продаже двухэтажный дом в Фонтанке, рядом с Черноморской Ривьерой. Общая площадь 125 кв.м, полностью автономный, АОГВ. Сейчас на этапе строительства, будет выстроен в скандинавском стиле Располож...
18.04.2026
Этажность:
1
Общая
125 м2
5 672 784 грн
Предлагается к продаже просторная однокомнатная квартира в новом элитном доме.Общей площадью 42 кв.м. В квартире сделан современный евроремонт из качественных стройматериалов. Встроенная новая кухня, шкаф и вся...
18.04.2026
Комнат
1
Этаж:
11/25
Общая
42 м2
Жилая
18 м2
Кухня
12 м2
1 920 019 грн
Продается жилой дом, в г. Белгород - Днестровском, дом крепкий, качественной постройки из красногог кирпича со своим двориком, огорожен высоким забором с местом для машины, есть еще постройка летняя кухня. В до...
18.04.2026
Этажность:
1
Общая
100 м2
Жилая
60 м2
1 178 194 грн
Продам двух этажный дом на 6 сотках земли. Состояние дома под ремонт, построен из кирпича. К дому подведены все комуникации: свет, вода, газ. Дом требует ремонта. Поэтому у Вас есть возможность воплотить свои м...
18.04.2026
Этажность:
1
Общая
68 м2
Жилая
31 м2
Кухня
6.8 м2
785 462 грн
Продаётся стильная 2-комнатная квартира с ремонтом в Жемчужине — современный дом 2020 года постройки. 18-й этаж дарит приятные виды на ипподром и внутренний двор. Общая площадь — 46,6 м²: две уютные спальни и ф...
18.04.2026
Комнат
2
Этаж:
18/24
Общая
47 м2
Жилая
21 м2
Кухня
21 м2
3 665 491 грн
Продается лучшая двухкомнатная квартира в новом, сданном в эксплуатацию ЖК Прохоровский Квартал. Особенность этой квартиры – ее вид! Выбирали ее именно за это: увлекательная панорама города и живописный Михайло...
18.04.2026
Комнат
2
Этаж:
13/16
Общая
69 м2
Жилая
40 м2
Кухня
12 м2
2 618 208 грн
Предлагается к продаже просторная однокомнатная квартира в новом элитном доме.Общей площадью 45 кв.м. В квартире сделан современный евроремонт из качественных стройматериалов. Санузел облицован дорогой современ...
18.04.2026
Комнат
1
Этаж:
18/24
Общая
45 м2
Жилая
18 м2
Кухня
12 м2
2 618 208 грн
Продается квартира студийного типа в ЖК «Атмосфера», Аркадия. Панорамный вид на город, рядом море. Общая площадь квартиры — 33,55 м².Выполнен качественный современный ремонт с использованием высококачественных ...
18.04.2026
Этаж:
23/25
Общая
33.55 м2
3 403 670 грн
В продаже просторная 1-комнатная квартира в престижном приморском районе, расположенная между Среднефонтанской дорогой и Адмиральским проспектом. Общая площадь — 42,2 кв.м. Состояние после строителей: выполнена...
18.04.2026
Комнат
1
Этаж:
20/24
Общая
42.2 м2
Жилая
20 м2
Кухня
12 м2
3 447 307 грн
Предлагаем вашему вниманию уютную двухкомнатную квартиру в коммунальном доме, которая станет отличным вариантом, как для комфортного проживания, так и для сдачи в аренду. Квартира в полном жилом состоянии, с ка...
18.04.2026
Комнат
1
Этаж:
8/9
Общая
45.1 м2
Жилая
29.3 м2
Кухня
2 м2
763 644 грн
В продаже двухкомнатная квартира в новом, своевременном ЖК на Черемушках. Дом – кирпичный. Квартира в состоянии от застройщика. Индивидуальное отопление. Балкон. Малоквартирный дом. Закрытая придомовая территор...
18.04.2026
Комнат
2
Этаж:
2/4
Общая
47.8 м2
Жилая
36.7 м2
Кухня
5 м2
1 832 746 грн
Продается светлая и уютная двухкомнатная квартира в жилом комплексе «Таировские Сады».Общая площадь квартиры составляет 56,7 м², расположена она на удобном седьмом этаже.Планировка продуманная и функциональная:...
18.04.2026
Комнат
2
Этаж:
7/17
Общая
56.7 м2
Жилая
28 м2
1 994 202 грн
Продается комната в коммуне в тихом районе частного сектора, недалеко от центра города. Комната находится на 1 этаже 3-этажки, возможна пристройка.Площадь комнаты 21 кв. Комната в жилом состоянии, высокие потол...
18.04.2026
Комнат
1
Этаж:
1/3
Общая
21 м2
Жилая
21 м2
458 186 грн
Продам двухкомнатную квартиру в курортном поселке Сергеевка. Квартира расположена на среднем этаже. Общая площадь 53 м2. Выполнен качественный ремонт, мебель, техника. Теплые полы. Поменяна сантехника и проводк...
18.04.2026
Комнат
2
Этаж:
4/9
Общая
53 м2
Жилая
31 м2
1 025 465 грн
Продам участок в пригороде Одессы – Червоный Хутор. Участок находится в тихом от городской суеты месте, идеально подходящем для строительства частного дома. Площадь – 4 соток, правильной формы, с удобным подъез...
18.04.2026
1 062 556 грн
Квартира в самом центре Одессы – это современное пространство, идеально подходящее для создания жилья вашей мечты. Формат свободной планировки открывает широкие возможности для индивидуального дизайна интерьера...
18.04.2026
Комнат
1
Этаж:
12/12
Общая
53.7 м2
Жилая
12.3 м2
Кухня
26 м2
4 920 922 грн
Предлагается к продаже здание площадью постройки 1850 кв.м, сейчас З этажа, есть возможность достроить 4 этаж. Заведены все коммуникации: свет, вода, канализация, газ. Здание расположено на участоке 25 соток, п...
18.04.2026
Этаж:
1/3
Общая
1850 м2
65 455 200 грн
В продаже самая лучшая двухкомнатная квартира в ЖК Гольфстрим. Продуманная планировка. Две отдельные комнаты. Вместительная кухня, гардеробная, рабочий кабинет и застекленная, большая лоджия с красивым видом на...
18.04.2026
Комнат
2
Этаж:
20/24
Общая
82 м2
Жилая
45 м2
Кухня
12 м2
6 632 794 грн
Популярное на сайте

ОдессаОдесса

КиевКиев






