Предлагается к продаже уютный дом в селе Нерубайское. Общая площадь 115 кв.м, расположен на участке 6.5 соток. В доме выполнен качественный современный ремонт, 3 комнаты, санузел, большая кухня-столовая с выход...
05.02.2026
Этажность:
1
Общая
115 м2
7 118 183 грн
В продаже участок в Прилиманском. Участок правильной формы 10 соток земли. Размеры участка 26,94 на 37,22. Без строений и ограждений. Вдоль участка свет. Участок находиться возле речки. Грунтовая дорога. Хороша...
05.02.2026
Общая
10
498 143 грн
Предлагается к продаже кладовка со всеми необходимыми коммуникациями: канализация, вода и электроснабжение. Общая площадь составляет 3,5 м², высота потолков — 3 м. Объект расположен на первом этаже в закрытой и...
05.02.2026
Этаж:
1/4
Общая
3.5 м2
86 281 грн
Готовый бизнес, Кафе в ж/м «Радужный». Продается действующее и успешное кафе со всем необходимым оборудованием и посудой. Это отличная возможность сразу начать прибыльный бизнес без усилий. Объект пользовался п...
05.02.2026
Этаж:
1/17
Общая
46.7 м2
5 263 141 грн
В продаже участок правильной формы не угловой в с. Молодежное. По линии участка проходит электричество. Район быстро застраивается. Рядом — море и остановка транспорта. До г. Черноморск 5 мин. Посредникам, прос...
05.02.2026
884 380 грн
В продаже 1-этажный, новый дом в Лесках, расположенный на 4,6 сотках земли. Дом построен из газобетона, перекрытия - бетонная плита, окна металлопластиковые, крыша из металлочерепицы. Общая площадь дома 88 метр...
05.02.2026
Этажность:
1
Общая
88 м2
Жилая
44 м2
Кухня
19 м2
6 902 480 грн
Предлагается к продаже паркоместо в новом жилом комплексе в Аркадии "Руслан и Людмила".Общая площадь 14,3м2. Подземный двухуровневый паркинг. Паркоместо находится на первом уровне. Закрыта территория ...
05.02.2026
Этаж:
1/23
Общая
14.3 м2
647 108 грн
В продаже 1 комнатная квартира на Каманина.Квартира с новым качественным, дизайнерским ремонтом, все зоны распланированы с учетом вашего комфорта.Мебель и техника остается новым покупателям. Рядом все необходим...
05.02.2026
Комнат
1
Этаж:
16/25
Общая
49 м2
Жилая
29 м2
4 314 050 грн
Продам в Одессе 2х комнатную квартиру на Таирово. Жемчужный квартал. Новый дом с генератором. 10-й этаж 19-ти этажного дома. Общая площадь 61 м2, жилая 35 м2, кухня 11 м2. Авторский ремонт. Фирменная техника и ...
05.02.2026
Комнат
2
Этаж:
10/19
Общая
61 м2
Жилая
35 м2
Кухня
11 м2
2 804 133 грн
Предлагается к продаже 1-комнатная квартира в панельном газовом доме в 5 минутах от центра города. Состояние жилое. Просторная комната с альковом и выходом на балкон. Есть кладовка. Полы - плитка и ламинат. Сан...
05.02.2026
Комнат
1
Этаж:
7/9
Общая
36 м2
Жилая
20 м2
Кухня
8 м2
1 380 496 грн
Новый жилой комплекс в сердце старой Одессы, в стороне от туристических маршрутов — привлекательный вариант для тех, кто ценит комфорт жизни в центре, но не любит лишней суеты и шума. Архитектурное решение и эт...
05.02.2026
Комнат
2
Этаж:
2/8
Общая
85 м2
Жилая
33 м2
Кухня
16 м2
7 549 588 грн
Продам 2-к квартиру в новом жилом комплексе. Этаж 19. Общая площадь двухкомнатной квартиры 71,8 кв.м. жилая площадь 33.3 кв.м., кухня 14,1 кв.м., коридор 11 кв.м., лоджия 5 кв.м. Гардеробная. Высота потолков в ...
05.02.2026
Комнат
2
Этаж:
19/25
Общая
71.85 м2
Жилая
33.3 м2
Кухня
14.1 м2
2 200 166 грн
Предлагается к продаже эксклюзивный пентаус с видом на море и парк. Новый жилой комплекс бизнес класса ЖК Pierre – это малоэтажный дом в французском стиле, расположенный в историческом центре Одессы. Квартира с...
05.02.2026
Комнат
1
Этаж:
10/10
Общая
106 м2
Жилая
27 м2
Кухня
46 м2
10 073 307 грн
Предлагается к продаже видовая однокомнатная квартира в новом сданном доме. Квартира после капитального ремонта, перепланирована в двухкомнатную. Смежный санузел облицован современной плиткой. Отличное располож...
05.02.2026
Комнат
1
Этаж:
11/11
Общая
49 м2
Жилая
26 м2
Кухня
10 м2
2 372 728 грн
Предлагается к продаже 1-но комнатная квартира в новом Сданном доме .В квартире сделан современный ремонт.Большая кухня студия.Прекрасное расположение дома в экологично чистом районе Одессы. Близость парка и Мо...
05.02.2026
Комнат
1
Этаж:
16/22
Общая
45 м2
Жилая
18 м2
Кухня
20 м2
2 027 604 грн
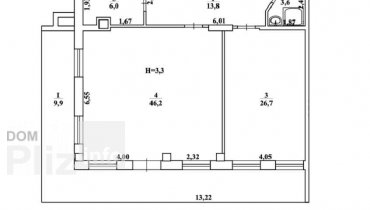
В продаже помещение под офис, площадью 37 метров. Цоколь с окном. С ремонтом, - плитка на полу, стены окрашены, подвесные потолки. На окнах роллеты. В этом же крыле продаются два помещения (37 метров и 42 метра...
05.02.2026
Этаж:
1/16
Общая
37 м2
1 164 794 грн
Предлагается к продаже дом. Одесская область пгт. Доброслав (Коминтерновское). Дом имеет два этажа, на каждом этаже своя кухня 4 комнаты и сан узел. Пригоден для круглогодичного проживания, площадь 210 кв.м. В ...
05.02.2026
Этажность:
1
Общая
210 м2
Жилая
103 м2
Кухня
16 м2
2 372 728 грн
Однокомнатная квартира, первый этаж двухэтажного дома. Дворовая квартира, свой вход со двора, двор чистый ухоженный, с воротами на ключе. Квартира с косметическим ремонтом, комната 14 кв м, кухня проходная, с/у...
05.02.2026
Комнат
1
Этаж:
1/2
Общая
26 м2
Жилая
14 м2
Кухня
7 м2
1 035 372 грн
В продаже коммуна в центре города Черноморска. Комната 9 кв.мв в хорошем жилом состоянии металлопластиковое окно, пол линолиум, на стенах обои. На площадке живут три соседа. Хороший уютный двор. Рядом рынок, су...
05.02.2026
Комнат
1
Этаж:
5/5
Общая
14 м2
Жилая
9 м2
258 843 грн
Продам в Одессе 2х комнатную квартиру в самом красивом доме юга Украины. 6й этаж 19 этажного дома. Общая площадь 68м2, жилая 27м2, кухня студия 26м2 с кабинетом и панорамным остеклением. 2х посторонняя. Авторск...
05.02.2026
Комнат
2
Этаж:
6/17
Общая
68 м2
Жилая
27 м2
Кухня
26 м2
3 666 943 грн
Популярное на сайте

ОдессаОдесса

КиевКиев






