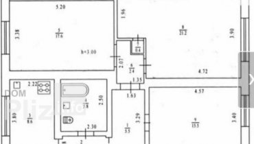
2-кімнатна квартира в новобудові. Загальна площа 71 кв.м. Квартира розташована на 7 поверсі 8-поверхового будинку. Планування найкраще з усіх представлених в даному житловому комплексі: простора кухня та кімна...
26.04.2026
Комнат
2
Этаж:
7/8
Общая
71 м2
Кухня
10 м2
1 625 824 грн
Двухкомнатная квартира на Половках, переулок Латышева 15 этаж 7. Заменили входные двери, окна ,балконный проём, сантехника , документы готовы к переоформлению. АН Галерея недвижимости 212458898!...
26.04.2026
Комнат
2
Этаж:
7/7
Общая
51 м2
Кухня
8 м2
1 406 118 грн
Продам дві кімнати з хорошим ремонтом, з кондиціонерами, з новою електропроводкою. Площа однієї кімнати 17, 4кв.м і другої 15, 3кв.м. На секції частково зроблений ремонт. На секції два балкони. Маємо свій елект...
26.04.2026
Комнат
2
Этаж:
4/5
Общая
51.9 м2
Жилая
32.7 м2
Кухня
12 м2
856 853 грн
Квартира во владении более 10 лет. Цена рассчитана по курсу 27,5. Счетчик - только электрический. Приблизительные платежи по отоплению в самый холодный месяц года - 990,00 грн, горячая вода на 1 персону - 360,0...
26.04.2026
Комнат
1
Этаж:
3/9
Общая
39 м2
Жилая
36 м2
Кухня
9 м2
1 406 118 грн
Авиогородок. Продаеться квартира в Полтаве Авиогородок Двухкомнатная квартира с общей кухней на две семьи Возможен обмен на дом г.Кременчуге район Керченской. Сталинка, кирпичный. Планировка: Раздельная. Отоп...
26.04.2026
Комнат
2
Этаж:
4/4
Общая
58 м2
Кухня
9 м2
834 883 грн
3-х комнатная квартира на 2-м этаже 5-ти этажного дома. Сталинка высота потолка 3.10 В каждой комнате и кухне по 2 окна (окна пластиковые) Одна квартира на площадке. Есть сигнализация. Находится в Авиагородке....
26.04.2026
Комнат
3
Этаж:
2/5
Общая
93 м2
Кухня
11 м2
2 197 060 грн
Кирпич, Автономка.• Однокомнатная квартира в новом доме на Леваде, возле Сільпо. • Раи?он - м-н Левада, • Характеристики - Общая - 40м2, кухня - 10м2 • 4u002F10 этаж. • Не угловая! • Автономное отопление! • Дом...
26.04.2026
Комнат
1
Этаж:
4/10
Общая
40 м2
Кухня
10 м2
1 494 001 грн
.Продам 2-ох комнатную квартиру по ул.Сако, 8-ой этаж, 9-и этажного кирпичного дома. Квартира в жилом состоянии, чистая, очень теплая, металопластиковые окна, новые межкомнатные двери(поменяны), новые бронедвер...
26.04.2026
Комнат
2
Этаж:
8/9
Общая
42 м2
Кухня
5 м2
1 428 089 грн
1 комн. кв-ра Авиагородок Полтава.Квартира во владении более 10 лет. Чистая, теплая, с косметическим ремонтом (зал в процессе покраски стен), с хорошими соседями по двухквартирному блоку. Общая площадь с учетом...
26.04.2026
Комнат
1
Этаж:
3/9
Общая
36 м2
Кухня
9 м2
1 406 118 грн
№212411285 Продам 1 комнатную квартиру в новострое на Подоле. Дом сдан. Закрытый двор, автономное отопление. Тип стен: Кирпичный;Отопление: Индивидуальное газовое;Ремонт: После строителей Вода , газ, электроэн...
26.04.2026
Комнат
1
Этаж:
1/10
Общая
42 м2
Кухня
14 м2
1 801 589 грн
2 кімнатна квартира без ремонту. На першому поверсі двоповерхового цегляного, із залізобетонним перекриттям будинку. У квартирі індивідуальне опалення (газовий котел). В дворі сарай з погрібом. Затишне подвіря,...
26.04.2026
Комнат
2
Этаж:
1/2
Общая
43.7 м2
Жилая
28.9 м2
Кухня
8.3 м2
1 155 654 грн
Продам 3-х комнатную квартиру на Леваде в новом доме возле Сильпо! Общая площадь квартиры 108 кв.м., кухня с эркером 21 кв.м.+ 4 кв.м. кладовка. Просторный коридор со встроенным шкафом купе, зал, спальная, детс...
26.04.2026
Комнат
3
Этаж:
6/10
Общая
108 м2
Кухня
25 м2
6 591 180 грн
Продам 2 квартири поруч:2- та3-кімнатна. З окремими входами. 1 поверх 5-поверхового цегляного будинку. Район ДСК. В обох квартирах індивідуальне опалення. Котли Ariston. Підлога ламінат, плитка. Сучасна якісна ...
26.04.2026
Комнат
3
Этаж:
1/1
Общая
49 м2
Кухня
18 м2
2 197 060 грн
Продам чудесную уютную квартиру 110 кВ м в Паленковском парке (остановка 5 школа) Дом сталинка. 4-й этаж четырёхэтажного кирпичного дома. Квартира полностью жилая с ремонтом и техникой . Своё автономное отоплен...
26.04.2026
Комнат
4
Этаж:
4/4
Общая
110 м2
Кухня
16 м2
5 712 356 грн
Продам 2 комнатную квартиру на Браилках Квартира на 5 этаже в 5 этажном панельном доме, комнаты раздельные. ;Тип дома: Хрущевка;Тип стен: Панельный;Планировка: Раздельная;Санузел: Смежный;Отопление: Централизов...
26.04.2026
Комнат
2
Этаж:
5/5
Общая
43 м2
Кухня
5 м2
1 230 354 грн
Продажа .Квартира на Половках, 60,9 кв.м. ,5 этаж,4 комнаты .Угловая комната утеплена изнутри, квартира тёплая .Без технического этажа, проблем с крышей нет и не было. Состояние жилое. Окна частично поменяны н...
26.04.2026
Комнат
4
Этаж:
5/5
Общая
61 м2
Кухня
6 м2
1 467 636 грн
. Кухня- студия- 12, 5 , комната - 17, 8, коридор Площадь - 41, 3 кв.м. Санузел ( душ и туалет) - на 5 семей. Оставляю всю мебель - шкаф- купе, стенку в комнате, 2 дивана, холодильник, стиральную машину, микров...
26.04.2026
Комнат
2
Этаж:
4/5
Общая
41.3 м2
Жилая
41.3 м2
Кухня
12.5 м2
834 883 грн
Стены из кирпичаЦентрализованное отопление (установлен индивидуальный счетчик на отопление).Тихий спальный район, красивый вид из окна.Двор закрытый с парко-местами для авто, под видеонаблюдением и шлагбаумом.П...
26.04.2026
Комнат
3
Этаж:
5/10
Общая
82 м2
Жилая
46 м2
Кухня
11 м2
3 295 590 грн
Помещение выведено в нежилой фонд 61 кв. общей площадиu 65000 у.е кирпичный дом собственное отопление отдельная входная группа удобное место расположение Пожарная сигнализация, Охраняемая территория, Сигнализ...
26.04.2026
Комнат
1
Этаж:
1/10
Общая
61 м2
Кухня
19 м2
2 856 178 грн
Продам 3х комнатную квартиру на Павленковская 3а, двух этажная. Частичный ремонт Тип стен: Кирпичный;Планировка: Многоуровневая;Санузел: 2 и более;Отопление: Индивидуальное газовое; Ремонт: После строителей. Л...
26.04.2026
Комнат
3
Этаж:
10/11
Общая
87 м2
Кухня
15 м2
4 394 120 грн
Популярное на сайте

ОдессаОдесса

КиевКиев






