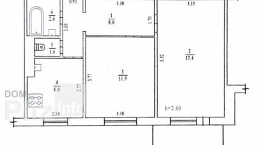
Продам 3х кімнатну квартиру район Половки.Продається 3-х кімнатна квартира район Половки. 61.8кв. м. ( загальна пл. квартири ) житлова пл. 45.10 кв.м кімната 17.30кв.м , кімната 17.10кв.м , кімната 10.70 кв.м, ...
06.11.2025
Комнат
3
Этаж:
2/5
Общая
61 м2
Кухня
6 м2
2 104 180 грн
Квартира в новом ЖК,,4 этаж,полностью все сделано под поклейку стен,полы уже выровняны,вся проводка новая,выведены коммуникации..Вид обєкта: Новобудова;Тип будинку: Житловий фонд від 2021 р.;Назва ЖК: Пелюстков...
06.11.2025
Комнат
1
Этаж:
4/10
Общая
38 м2
Кухня
10 м2
1 388 759 грн
Продаж 2х кімнатна квартира на Браїлках з меблями і технікою, квартира утеплена, має теплу підлогу, великий балкон - як зона відпочинку і маленький для сушки речей, консервування та ін. Продумані і зручні ус...
06.11.2025
Комнат
2
Этаж:
6/9
Общая
65 м2
Кухня
10 м2
2 693 350 грн
Продається однокімнатна квартира в сучасній новобудові!. Продається однокімнатна квартира в сучасній новобудові! tПлоща: 38 м2. Поверх: 9 із 9 (останній, без шуму зверху). Стан: без ремонту, від забудовника – м...
06.11.2025
Комнат
1
Этаж:
9/9
Общая
38 м2
Кухня
10 м2
1 325 633 грн
Полтава, Київський, Заячий провулок, 10А, кирпич, Чудова 3-х кімната квартира з ремонтом, меблями та частково з технікою. Розташована в 5 хвилинах від ринку та зупинки. Будинок цегляний, теплий. Поряд вся інфра...
06.11.2025
Комнат
3
Этаж:
10/10
Общая
68 м2
Жилая
37 м2
Кухня
10 м2
2 398 765 грн
Полтава, Половки, Весняна вулиця, 9, цегла,...
06.11.2025
Комнат
1
Этаж:
7/11
Общая
46 м2
1 557 093 грн
Продаж 1 кв ЖК Пелюстковий, вул. Башкірцева 20, 1 корпус, 7 поверх, 45 м, кімната 19, лоджія з кімнати, стан після будівельників, автономне опалення. Будинок зданий та ведений в експлуатацію. Розглядаємо варіан...
06.11.2025
Комнат
1
Этаж:
7/9
Общая
45 м2
Жилая
19 м2
Кухня
11 м2
1 346 675 грн
Полтава, Браїлки, Башкирцевої Марії вулиця, 20, монолітно-каркасний, ЖК Пелюстковий, 1 -й будинок, р-н Браїлки Вул. Марії Башкірцевої 20, (на 8 поверсі) монолітно- каркасний будинок, утеплений мінеральною ватою...
06.11.2025
Комнат
2
Этаж:
8/9
Общая
60 м2
Жилая
31 м2
Кухня
10 м2
1 851 678 грн
Полтава, Половки, Тимошенка Юрія (Тарапуньки) вулиця, 12А, панель, Купуйте і живіть, будь ласка! Документи готові, прописаних і боргів немає. ОСББ. Меблі на фото включені у вартість (крім дивану Лондон в дитячі...
06.11.2025
Комнат
3
Этаж:
6/9
Общая
61 м2
Кухня
9 м2
2 230 431 грн
Полтава, Київський, Григорія Левченка (Сапіго) вулиця, 2, цегла, Продам квартиру з новим ремонтом у новобудові. Дорогі матеріали, якісне виконання робіт. Заселений будинок, всі комунікації підключені. Класні с...
06.11.2025
Комнат
1
Этаж:
7/9
Общая
45 м2
Жилая
18 м2
Кухня
20 м2
3 577 106 грн
ЖК Пелюстковий. 1 корп. Кв 251. .Жк Пелюсковий. 1 корпус. 7 повер Продаж. Можлива переуступка ще. Вікна не у двір. 44.82 кв.м..Вид обєкта: Новобудова;Тип будинку: Житловий фонд від 2021 р.;Назва ЖК: Пелюсковий;...
06.11.2025
Комнат
1
Этаж:
7/10
Общая
45 м2
Кухня
11 м2
1 472 926 грн
ЖК Затишний Юрівка, Найнижча ціна 1- кімнатної квартири в новому будинку!! Зручний р-н, по маршруту кольцевого, м-н Половки. Забудовується новий ЖК «Затишний». Панельный 10-этажный дом с практичными планировкам...
06.11.2025
Комнат
1
Этаж:
7/10
Общая
39 м2
Кухня
8 м2
885 000 грн
Продам 1 кім квартиру. Продам 1 кім квартиру на леваді повністю з ремонтом та меблі! Дорогий ремонт у ванній кімнаті керамічна раковина та унітаз, ванна та шторка равак, теплі полі, сігналізація, Счетчики індив...
06.11.2025
Комнат
1
Этаж:
8/16
Общая
38 м2
Кухня
12 м2
2 567 100 грн
Продаж 2 кімнатної квартири у новобудові. Сучасний дизайнерський ремонт з використанням якісних матеріалів. Зручне планування, що забезпечує максимум простору та комфорту. Вигідне розташування: поруч знаходят...
06.11.2025
Комнат
2
Этаж:
7/10
Общая
64 м2
Жилая
32 м2
Кухня
8 м2
3 408 772 грн
Полтава, Київський, Затишна (Уютна) вулиця, 15, цегла, До вашої уваги видова однокімнатна квартира з індивідуальним опаленням. Ремонт закінчений на 95% лишилось замовити кухонні меблі, покрасити стіни в кімнаті...
06.11.2025
Комнат
1
Этаж:
8/9
Общая
44 м2
Жилая
17 м2
Кухня
12 м2
1 935 804 грн
Продам квартиру 88,7 квм. Левада.Продам 3-х кімнатну квартиру у обжитому будинку з закритою територією та відеоспостереженням. В будинку 2 під?їзди. В квартирі зроблено перепланування та чорнові роботи згідно д...
06.11.2025
Комнат
3
Этаж:
5/10
Общая
88 м2
Кухня
14 м2
5 470 868 грн
Продається квартира в сучасній новобудові , 2017 рік здачі будинку .Ремонт робили якісно для себе, тепла підлога в санвузлі, балкон оснащений під спальне місце, частково залишаються меблі. Є кладовка на поверсі...
06.11.2025
Комнат
1
Этаж:
3/10
Общая
43 м2
Жилая
19 м2
Кухня
10 м2
1 893 762 грн
Продам двох комнатну квартиру.Продам двох комнатну квартиру,біля музею Полтавської битви, від города 6км, рядом церква школа зупинка громадського транспорту, душова кабіна знаходиться в кухні, туалет також отде...
06.11.2025
Комнат
2
Этаж:
2/3
Общая
50 м2
Кухня
20 м2
1 031 048 грн
Продам квартиру ,новобуд.Дом сдан!!!Продам квартиру ,новострой,ЖК Пелюстковий,Вул Марии Башкирцевой,корпус 2,г,9 этаж,45 кв.м.Так же есть квартира на 6 этаже такой же планировки в 3 корпусе.В квартире стены пош...
06.11.2025
Комнат
1
Этаж:
9/9
Общая
45 м2
Кухня
11 м2
1 451 884 грн
Продам 2х кімнатну квартиру.Продам 2х кімнатну квартиру у районі південного вокзалу.вікна металопластикові,труби і стояки замінені,кімнати окремі з ремонтом,кухня з ремонтом і частково залишаються меблі,вхідні ...
06.11.2025
Комнат
2
Этаж:
8/9
Общая
47 м2
Кухня
5 м2
1 472 926 грн
Популярное на сайте

ОдессаОдесса

КиевКиев






