Кол-во комнат
Продажа.Квартира однокомнатная 45 квадратов квартира с ремонтом продается с мебелью.... ;Тип дома: Хрущевка;Тип стен: Панельный;Планировка: Раздельная;Санузел: Смежный;Отопление: Централизованное;Ремонт: Авторс...
02.12.2025
Комнат
1
Этаж:
5/5
Общая
45 м2
Кухня
5 м2
1 778 036 грн
в новому будинку 9-10 поверх.Відмінне місце розташування, вся інфраструктура поруч, школа, садок, супермаркет, лікарня, ринок, все в 5 хвилинному доступі.Можливість перепланування в кухню студію Вікна квартири ...
02.12.2025
Комнат
3
Этаж:
9/10
Общая
87 м2
Жилая
45 м2
Кухня
10 м2
3 259 733 грн
Продам 3-кімнатну квартиру-студію в цегляному будинку на Браїлках. В квартирі зроблено ремонт. Ремонт робився з нуля- с заміною проводки, труб, вікон, сантехники. Квартира дуже тепла. Дві лоджиї. Поряд вся потр...
02.12.2025
Комнат
3
Этаж:
1/5
Общая
67 м2
Кухня
8 м2
2 624 720 грн
Продам 1-кімнатну квартиру , вул. М. Башкірцевої, 20,на 8 поверсі, НЕ кутова, перший дім Комплектація квартири та перелік робіт по квартирі - вхідні двері - металеві протипожежні з МДФ накладками - стіни – ст...
02.12.2025
Комнат
1
Этаж:
8/9
Общая
38 м2
Кухня
9 м2
1 270 026 грн
Квартира розташована в історичному будинку. На поверсі розташовано 2 квартири, підїзд просторий та чистий. Поряд знаходиться школа, дитсадок, лікарня, спорткомплекс з бассейном (відкриття у 2022 році), музей ...
02.12.2025
Комнат
4
Этаж:
4/5
Общая
147 м2
Жилая
93 м2
Кухня
17 м2
5 376 443 грн
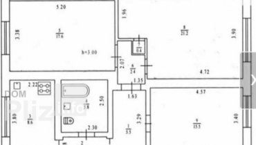
Квартира в частном секторе, 119,7 кв.м.. Все коммуникации подведены, металопластиковые окна, без ремонта.. Кирпичный. Планировка: Раздельная. №212493187...
02.12.2025
Комнат
4
Этаж:
1/1
Общая
119 м2
Кухня
9 м2
2 963 394 грн
Однокомнатная квартира от Собственника в новом доме на Леваде, возле Сільпо. • Дом сдан в эксплуатацию! • Раи?он - м-н Левада, • Характеристики - Общая - 40м2, кухня - 12м2. • 4/10 этаж. • Не угловая! • Автоном...
02.12.2025
Комнат
1
Этаж:
4/10
Общая
40 м2
Жилая
12 м2
1 439 363 грн
Продаю 2 к квартиру, возле остановки , рядом школа , рынок , садик , квартира в хорошем состоянии АН Галерея недвижимости №212480493...
02.12.2025
Комнат
2
Этаж:
5/5
Общая
50 м2
Кухня
8 м2
1 227 692 грн
Продам 1 комнатную квартиру в Полтаве . Частный сектор. $ 25 000. Сделан ремонт.Возможность обмена. Царский дом. Кирпичный. Индивидуальное газовое. Косметический ремонт Меблирование. Бытовая техника: Холодильн...
02.12.2025
Комнат
1
Этаж:
1/1
Общая
27 м2
Кухня
6 м2
1 058 355 грн
Продам 2-комнатную кв-ру на Подоле, №212472369 Отличный район и инфраструктура, тихий двор, близость к центру. Пятый этаж 5-этажного кирпичного дома. Кв-ра теплая, не угловая, есть балкон. Комнаты смежные, во...
02.12.2025
Комнат
2
Этаж:
5/5
Общая
47 м2
Кухня
6 м2
1 439 363 грн
Продажа 3-комнатной квартиры в Полтаве на Браилках в 5этажном панельном доме на 5 этаже, боковая.Крыша не течет.Балкон полностью заменён на новый. Есть подводка к бойлеру и стиралке,состояние квартиры удовлетво...
02.12.2025
Комнат
3
Этаж:
5/5
Общая
49 м2
Кухня
5 м2
1 185 358 грн
Продам двокімнатну квартиру на Браїлках. Будинок знаходиться в спальному районі. Зручне розташування житла дасть змогу як зайнятися спортом для молоді, адже неподалік добудовується спортивний комплекс з басейно...
02.12.2025
Комнат
2
Этаж:
2/5
Общая
42 м2
Кухня
7 м2
1 608 700 грн
2-кімнатна квартира в новобудові. Загальна площа 71 кв.м. Квартира розташована на 7 поверсі 8-поверхового будинку. Планування найкраще з усіх представлених в даному житловому комплексі: простора кухня та кімна...
02.12.2025
Комнат
2
Этаж:
7/8
Общая
71 м2
Кухня
10 м2
1 566 365 грн
Пропоную до продажу 2-кімнатну квартиру покращеного планування, (майже як трикімнатна) в новобудові, в новому мікрорайоні на Юрівці Загальна площа 78.28 кв.м. Висота стелі 2,65м сучасне планування з просторою ...
02.12.2025
Комнат
2
Этаж:
6/10
Общая
78 м2
Кухня
13 м2
1 934 673 грн
Двухкомнатная квартира на Половках, переулок Латышева 15 этаж 7. Заменили входные двери, окна ,балконный проём, сантехника , документы готовы к переоформлению. АН Галерея недвижимости 212458898!...
02.12.2025
Комнат
2
Этаж:
7/7
Общая
51 м2
Кухня
8 м2
1 354 694 грн
Продам дві кімнати з хорошим ремонтом, з кондиціонерами, з новою електропроводкою. Площа однієї кімнати 17, 4кв.м і другої 15, 3кв.м. На секції частково зроблений ремонт. На секції два балкони. Маємо свій елект...
02.12.2025
Комнат
2
Этаж:
4/5
Общая
51.9 м2
Жилая
32.7 м2
Кухня
12 м2
825 517 грн
Квартира во владении более 10 лет. Цена рассчитана по курсу 27,5. Счетчик - только электрический. Приблизительные платежи по отоплению в самый холодный месяц года - 990,00 грн, горячая вода на 1 персону - 360,0...
02.12.2025
Комнат
1
Этаж:
3/9
Общая
39 м2
Жилая
36 м2
Кухня
9 м2
1 354 694 грн
Авиогородок. Продаеться квартира в Полтаве Авиогородок Двухкомнатная квартира с общей кухней на две семьи Возможен обмен на дом г.Кременчуге район Керченской. Сталинка, кирпичный. Планировка: Раздельная. Отоп...
02.12.2025
Комнат
2
Этаж:
4/4
Общая
58 м2
Кухня
9 м2
804 350 грн
3-х комнатная квартира на 2-м этаже 5-ти этажного дома. Сталинка высота потолка 3.10 В каждой комнате и кухне по 2 окна (окна пластиковые) Одна квартира на площадке. Есть сигнализация. Находится в Авиагородке....
02.12.2025
Комнат
3
Этаж:
2/5
Общая
93 м2
Кухня
11 м2
2 116 710 грн
Кирпич, Автономка.• Однокомнатная квартира в новом доме на Леваде, возле Сільпо. • Раи?он - м-н Левада, • Характеристики - Общая - 40м2, кухня - 10м2 • 4u002F10 этаж. • Не угловая! • Автономное отопление! • Дом...
02.12.2025
Комнат
1
Этаж:
4/10
Общая
40 м2
Кухня
10 м2
1 439 363 грн
Популярное на сайте

ОдессаОдесса

КиевКиев






