Продається офісне приміщення
Київ, р-н Голосіївський, Голосеевский пр-т
ID: 4778976
29 890 692 грн
(264 519 за м2)
К-ть приміщень
3
Поверх
1/20
Тип стін
цегла
Загальна площа
113 м2
Стан
житлове
Тип нерухомості
Офісне приміщення
Продажа офиса 113 м2 в ЖК Park Avenue VIP (пр-т Голосеевский, Голосеевский район). Офис расположен на 1-этаже (нежилой фонд) и имеет отдельный вход (не фасадный). Дизайнерский ремонт. Смешанная планировка, первый уровень - 94,8 м2, второй уровень - 18,2 м2. Офис оборудован пожарной и охранной системами безопасности, установлены кондиционеры. Высота потолков 5м., 2,7м. и 2м.. В пешей доступности ст.метро Демеевская (6 минут). Продажа с мебелью. Договор купли-продажи. Номер объявления на сайте компании: SC-155-119-DP.
Створено : 11.02.2022
29 890 692 грн
(264 519 за м2)
680 000 $
(6 018 за м2)
Виталий Олегович
посередник
Створено : 11.02.2022
Переглянуті
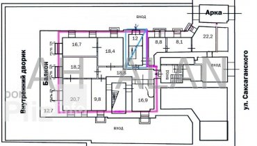
Продажа стильного офиса в центре Киева по адресу улица Саксаганского. Этаж 1/6 этажного здания. Общая площадь офиса 120 м2. Фоторгафии и планировка соответствуют реальности. Планировка - open space + рабочие зо...
05.05.2026
Поверх:
1/6
Загальна
120 м2
19 780 605 грн
Продається приміщення широкого спектру використання. Голосіївський район, вулиця Феодосійська, 2, метро Деміївська.Офіс в новому житловому будинку, нежитловий фонд, по вулиці Феодосійській , 2. Площа 107,7 кв.м...
22.04.2026
Поверх:
1/24
Загальна
108 м2
4 615 475 грн
Продажа офиса по улице Антоновича, 169Нежилой фонд.Площадь 118 кв.м, отдельная входная группа со двора, рядом ТРЦ Ocean Plaza , от м. Лыбидская 100 м.-1 этаж 2 раздельных кабинета с большими окнами, оборудов...
22.04.2026
Поверх:
1/5
Загальна
118 м2
5 055 044 грн
Без комиссии! Продажа офиса 120 м2 по улице Саксаганского (Голосеевский р-н). Первый этаж, жилой фонд, 2 входа: через парадное с фасада и со двора. Кабинетная планировка - 5 кабинетов, есть оборудованная мини-к...
11.02.2022
Поверх:
1/6
Загальна
120 м2
11 209 010 грн
Популярне на сайті

ОдесаОдеса

КиївКиїв





















