Продається будинок
, , Авиаторов ул.
ID: 4779038
10 431 672 грн
(37 256 за м2)
К-ть приміщень
5
Поверховість
1/3
Тип стін
цегла
Загальна площа
280 м2
Стан
житлове
Тип нерухомості
Будинок
Ділянка:
8
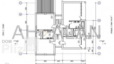
Продажа трехэтажного дома в с.Петропавловская Борщаговка. Площадь 280 м.кв., участок 8 соток. Жилой дом в центре на улице Авиаторов. Два этажа и жилая мансарда под бильярдный зал и гостевую комнату. Первый этаж: гараж, спортзал, санузел, сауна с бассейном. Второй этаж: зал с камином и три спальни, санузел, кухня со столовой. На третьем мансардном этаже: бильярдный зал, комната для гостей, кладовая. Дом утеплен пенопластом и сайдингом. Стены ж/б блоки и красный кирпич. Крыша металлочерепица. Отопление -два котла твердотопливный и газовый, есть электрический бойлер. Под гаражом погреб. Возле дома навес на две машины. Сад с плодоносящими деревьями, беседка, мангал. В двух шагах находится вся инфраструктура: ТЦ Аметист, спортклубы, супермаркет Фора, Сельский совет, детский сад, остановка общественного транспорта, аптека, магазин Ева, салон красоты. Отличное место! Номер объявления на сайте компании: SH-124-956-DP.
Створено : 11.02.2022
10 431 672 грн
(37 256 за м2)
240 000 $
(857 за м2)
Оксана Владимировна
посередник
Створено : 11.02.2022
Переглянуті
Продажа дома 278 м2 в с. Ходосовка . До Киева - 5 км. Метро «Выдубичи» - 18 км. Рядом:- Школа, детский садик,- ТРЦ «Мегамаркет»,- Аутлет-городок Мануфактура,- Озеро Голубое,- Лес.Подъезд: АсфальтированныйДом:Э...
11.02.2022
Поверховість:
1
Загальна
278 м2
Ділянка
15
18 255 426 грн
Продажа дома 277 м2 в Гореничах. 4 спальни, кабинет, кухня, зал, 3 с\у, состояние после строителей (коробка с видовой террасой на крыше, стеклопакеты ) Построен с соблюдением строительных норм. Весь процесс стр...
11.02.2022
Поверховість:
1
Загальна
277 м2
Ділянка
13
8 693 060 грн
Популярне на сайті

ОдесаОдеса

КиївКиїв






























