Продається 2-кімнатна квартира
Одеса, р-н Київський, Вильямса Ак. (ЖК Таировские Сады) ул.
ID: 5000355
1 899 153 грн
(31 547 за м2)
Кіл-ть кімнат
2
Поверх
2/15
Тип стін
цегла
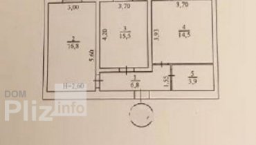
Загальна площа
60.2 м2
Житлова площа
30.7 м2
Площа кухні
13 м2
Стан
житлове
Тип нерухомості
Вторинний ринок
Предлагается к продаже 2-х комнатная квартира в новом современном комплексе, расположенном в одном из лучших районов г. Одессы, Таирово. Квартира на 2-м этаже, 17-ти этажного дома. Общая площадь 60 м.кв., две раздельные, светлые комнаты 13 м.кв. и 17 м.кв., из одной выход на лоджию, просторная кухня – гостиная 13 м.кв. с панорамным остеклением. Правильная планировка. Раздельный санузел. На полу идеальная стяжка, установлены металлопластиковые окна, бронированная дверь, приборы учета. Для жильцов дома – бассейн, площадки для отдыха, велодорожки. Благоустроенная придомовая территория, высокоразвитая инфраструктура и полная автономия делают жилой комплекс комфортным, уютным. Звоните, это хорошое вложение! Посредникам, просьба не беспокоить.
Оновлене: 03.12.2025
1 899 153 грн
(31 547 за м2)
45 000 $
(748 за м2)
Премьер Королева, 114
посередник
Оновлене: 03.12.2025
Переглянуті
Продаж двокімнатної квартири в ЖК Омега на вулиці Георгія Липського, 135 (Толбухіна). Панорамні вікна з видом на місто та приватний сектор. Капітальний ремонт робили собі. Кухня вітальня 17,6 кв.м, дві спальні ...
03.12.2025
Кімнат
2
Поверх:
22/25
Загальна
70 м2
Житлова
30 м2
Кухня
18 м2
4 980 001 грн
Продаж двокімнатної квартири в ЖК Омега на вулиці Георгія Липського, 135 (Толбухіна). Панорамні вікна з видом на море та приватний сектор. Розвинена інфраструктура, поруч супермаркет, у пішій доступності парк М...
02.12.2025
Кімнат
2
Поверх:
25/25
Загальна
67 м2
Житлова
32 м2
Кухня
12 м2
3 967 120 грн
20590 Продам 2-х комнатную квартиру в малоэтажном жилом комплексе "Via Roma".От строителя. Просторные комнаты. Общая площадь 57 кв.м. Средний этаж. Автономное газовое отопление. Система охраны и видео наблюдени...
02.12.2025
Кімнат
2
Поверх:
4/12
Загальна
57 м2
Житлова
32 м2
Кухня
14 м2
2 257 882 грн
30614.Продам двухкомнатную квартиру в жилом комплексе 49 Жемчужина общей площадью 66.45 кв.м. Просторная и светлая квартира с качественным ремонтом, выполненным с учетом всех современных требований. Мебель изго...
30.11.2025
Кімнат
2
Поверх:
12/19
Загальна
66 м2
Житлова
47 м2
Кухня
14 м2
3 798 306 грн
Популярне на сайті

ОдесаОдеса

КиївКиїв



















