Продається будинок
Лиманський район, Фонтанка, Светлая ул.
ID: 5042314
3 895 041 грн
(10 820 за м2)
Поверховість
1/3
Тип стін
цегла
Загальна площа
360 м2
Житлова площа
100 м2
Стан
житлове
Тип нерухомості
Будинок
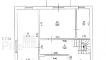
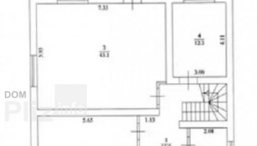
Предлагается к продаже трехуровневый дом в Фонтанке. Дом из ракушечного блока, толщина стен 40см, заштукатурен внутри и снаружи. В каждой комнате есть вен.каналы. Заведена вода и электричество, на чердаке дома установлена 2-х кубовая бочка для запаса воды. Полноценный цокольный этаж полностью состоит из блоков толщиной 50см (можно использовать как бомбоубежище), там же гараж на 2 машины. Дом можно разделить на 2 хозяина (предусмотрено по ген.плану), участок угловой есть два вьезда. Участок прямой 25 х 40, также можно разделить на двое, есть молодой сад с плодоносящими деревьями. Участок огражден забором из ракушечника по периметру. Район активно застраивается, отдаленность от города 3км, от моря 2км. 500м от асфальтированной дороги, район 1 Фонтанки, в 1км от ТЦ Ривьера. Посредникам, просьба не беспокоить. ID объекта: 199665
Оновлене: 19.12.2025
3 895 041 грн
(10 820 за м2)
92 000 $
(256 за м2)
Премьер Сахарова, 24
посередник
Оновлене: 19.12.2025
Переглянуті
Предлагается к продаже двухэтажный дом в Фонтанке на улице Радужная. Общая площадь 250 кв.м, удобная планировка: четыре большие спальни, три санузла, гостиная, кухня, терраса.Гостевой дом с гаражом общей площад...
19.12.2025
Поверховість:
1
Загальна
350 м2
Кухня
40 м2
13 124 594 грн
Продам дом общая площадь 360 кв.м. Большой просторный дом для всей семьи. Расположен в Фонтанке. С ремонтом, отличное состояние, с мебелью и техникой. 10 соток земли, обустроенный двор. Есть мансарда, зона барб...
19.12.2025
Поверховість:
1
Загальна
360 м2
Житлова
150 м2
3 810 366 грн
Популярне на сайті

ОдесаОдеса

КиївКиїв
















