Здам довгостроково офісне приміщення
Київ, р-н Шевченківський, Пимоненко Николая ул., 13
ID: 5202009
674 476 грн
К-ть приміщень
10
Поверх
6/6
Тип стін
цегла
Загальна площа
1100 м2
Стан
житлове
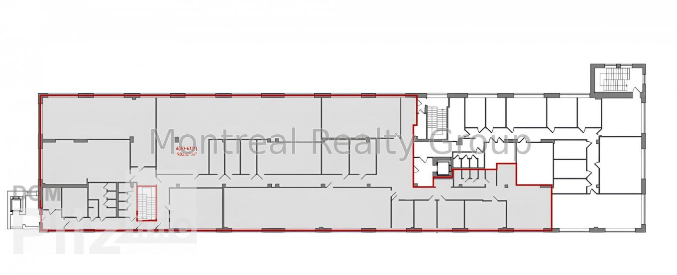
Аренда просторного офиса в Бизнес центре класса " В + " по адресу улица Николая Пимоненко. Этаж 6/6 этажного нежилого здания. Полезная площадь офиса 985.67 м2. Арендуемая площадь 1 103.95 м2 ( 10 % коэффициент BOMA ). Фотографии и планировка соответствуют реальности. Планировка - open space + рабочие зоны + кабинеты/переговорные, место для кухни, санузлы, кладовки, серверная. Состояния - хороший офисный ремонт. Офис оснащен всем необходимым для комфортной и безопасной работы. Отличная транспортная развязка, в пешей доступности остановка общественого транспорта и станция метро Лукьяновская 10 минут пешком.Вакантность в этом БЦ - 84 м2, 92 м2, 100 м2, 122 м2, 123 м2, 136 м2, 228 м2, 260 м2, 293 м2, 300 м2, 330 м2, 348 м2, 355 м3, 351 м2, 366 м2, 377 м2, 406 м2, 446 м3, 693 м2, 741 м2, 865 м2, 1 103 м2.Оснащения Бизнес Центра:1. Система приточно-вытяжной вентиляции.2. Система кондиционирования.3. Автономная система отопления с терморегуляторами.4. Оптоволоконные линии связи.5. Система контроля доступа.6. Противопожарная система7. Круглосуточная физическая охрана.8. Видеонаблюдение (периметр, холл, лифты, помещения общего пользования, парковка).9. Лифты - 10 шт., фирмы OTIS.10. Большая наземная парковка.11. 2 независимых источника энергии.12. Генератор.Коммерческие условия:Арендная ставка - 14.72 $/м2 с эксплуатации + НДС + коммунальные услуги.Номер оголошення на сайті компанії: RC-128-814-DP.
Оновлене: 03.10.2025
674 476 грн
16 250 $

Радион Попов
посередник
Оновлене: 03.10.2025
Переглянуті
Аренда современного офиса в центре Киева в Бизнес Центре класса " В + " по адресу улица Зоологическая. Этаж 5/13 этажного нежилого здания. Общая площадь офиса 1 155 м2. Фотографии и планировка соответствуют реа...
08.10.2025
Поверх:
5/13
Загальна
1100 м2
908 986 грн
Аренда современного офиса в центре Киева в Бизнес Центре класса " В + " по адресу улица Большая Васильковская. Этаж 8/9 этажного нежилого здания. Общая площадь офиса 1 114 м2. Фотографии и планировка соответств...
03.10.2025
Поверх:
8/9
Загальна
1100 м2
508 451 грн
Аренда отдельно стоящего офисного здания в центре Киева по адресу улица Владимира Мономаха ( Отто Шмидта ). 4 этажа. Общая площадь здания 1084 м2. Фотографии и планировка соответствуют реальности. Планировка - ...
03.10.2025
Поверх:
1/4
Загальна
1100 м2
622 593 грн
Популярне на сайті


Одеса


Київ