Здам довгостроково офісне приміщення
Київ, р-н Шевченківський, Дегтяревская ул., 53
ID: 5202231
381 857 грн
К-ть приміщень
14
Поверх
3/15
Тип стін
цегла
Загальна площа
800 м2
Стан
житлове
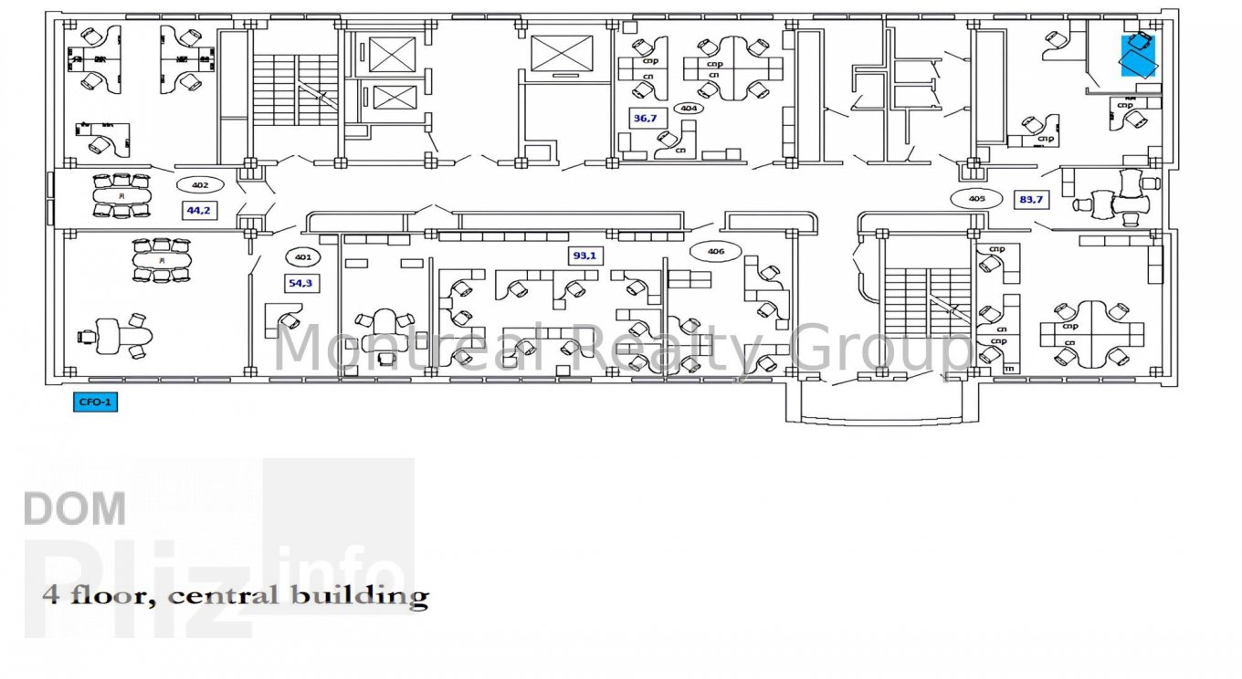
Аренда просторного офиса в центре Киева в Бизнес Центре класса " В " по адресу улица Дегтяревская. Этаж 3-4/15 этажного нежилого здания. Общая площадь офиса 800 м2. Фотографии и планировка соответствуют реальности. Планировка - рабочие зоны + кабинеты/переговорные, место для кухни, санузлы, кладовки, серверная. Состояния - хороший офисный ремонт. Офис оснащен всем необходимым для комфортной и безопасной работы. Отличная транспортная развязка, в пешей доступности остановка общественного транспорта и станция метро Берестейская 5 минут пешком.Вакантность в этом БЦ - 300 м2, 400 м2, 800 м2, 1 600 м2, 2000 м2, 2 400 м2, 2 800, 3 200 м2, 1 200 м2, 600 м2.Оснащения Бизнес Центра:1. Система кондиционирования.2. Система приточно-вытяжной вентиляции.3. Оптоволоконные линии связи.4. Система контроля доступа.5. Противопожарная система безопасности.6. Круглосуточная физическая охрана.7. Видеонаблюдение.8. Лифты - 2 шт., фирмы OTIS.9. Большая наземная парковка.10. Генератор.Коммерческие условия:Арендная ставка - 11.5 $/м2 с эксплуатации + НДС + коммунальные услуги.Номер оголошення на сайті компанії: RC-204-696-DP.
Оновлене: 03.10.2025
381 857 грн
9 200 $

Радион Попов
посередник
Оновлене: 03.10.2025
Переглянуті
Аренда просторного офиса в центре Киева в Бизнес Центре класса " В + " по адресу улица Дегтяревская. Этаж 5/6 этажного нежилого здания. Общая площадь офиса 770 м2. Фотографии и планировка соответствуют реальнос...
08.10.2025
Поверх:
5/6
Загальна
800 м2
498 074 грн
Аренда просторного офиса в центре Киева в Бизнес Центре класса " В + " по адресу улица Бульварно-Кудрявская. Этаж 1/5 этажного нежилого здания. Общая площадь офиса 783.1 м2. Фотографии и планировка соответствую...
03.10.2025
Поверх:
1/4
Загальна
800 м2
489 773 грн
Аренда просторного офиса в Бизнес Центре класса " В " улица Дегтяревская. Этаж 10/10 этажного нежилого здания. Полезная площадь офиса 700 м2. Арендуемая площадь 785 м2 ( 11 % коэффициент BOMA ). Фотографии и пл...
03.10.2025
Поверх:
10/10
Загальна
790 м2
359 029 грн
Популярне на сайті


Одеса


Київ