Здам довгостроково офісне приміщення
Київ, р-н Шевченківський, Дегтяревская ул., 53
ID: 5202232
768 091 грн
К-ть приміщень
16
Поверх
5/15
Тип стін
цегла
Загальна площа
1600 м2
Стан
житлове
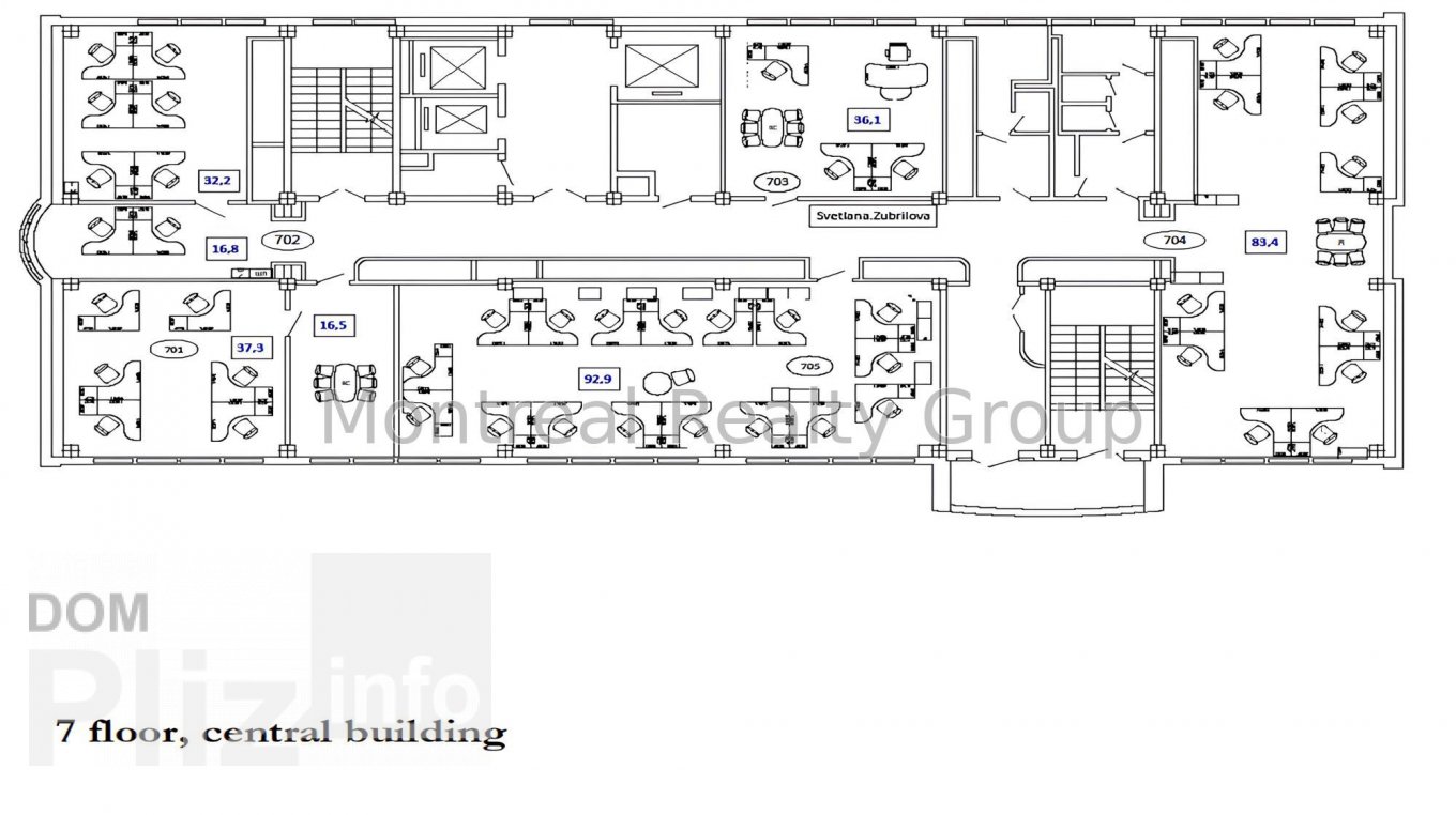
Аренда просторного офиса в центре Киева в Бизнес Центре класса " В " по адресу улица Дегтяревская. Этаж 5-6-7-8/15 этажного нежилого здания. Общая площадь офиса 1 600 м2. Фотографии и планировка соответствуют реальности. Планировка - рабочие зоны + кабинеты/переговорные, место для кухни, санузлы, кладовки, серверная. Состояния - хороший офисный ремонт. Офис оснащен всем необходимым для комфортной и безопасной работы. Отличная транспортная развязка, в пешей доступности остановка общественного транспорта и станция метро Берестейская 5 минут пешком.Вакантность в этом БЦ - 300 м2, 400 м2, 800 м2, 1 600 м2, 2000 м2, 2 400 м2, 2 800, 3 200 м2, 1 200 м2, 600 м2.Оснащения Бизнес Центра:1. Система кондиционирования.2. Система приточно-вытяжной вентиляции.3. Оптоволоконные линии связи.4. Система контроля доступа.5. Противопожарная система безопасности.6. Круглосуточная физическая охрана.7. Видеонаблюдение.8. Лифты - 2 шт., фирмы OTIS.9. Большая наземная парковка.10. Генератор.Коммерческие условия:Арендная ставка - 11.5 $/м2 с эксплуатации + НДС + коммунальные услуги.Номер оголошення на сайті компанії: RC-204-697-DP.
Оновлене: 03.10.2025
768 091 грн
18 400 $

Радион Попов
посередник
Оновлене: 03.10.2025
Переглянуті
Аренда современного офиса в центре Киева в Бизнес центре класса " В + " по адресу улица Николая Пимоненко. Этаж 2/6 этажного нежилого здания. Полезная площадь офиса 576.08 м2. Арендуемая площадь 645.21 м2 ( 12 ...
21.10.2025
Поверх:
2/6
Загальна
650 м2
396 569 грн
Здам офісне приміщення в самому центрі столиці, на перетині вулиць Володимирської та Великої Житомирської, Площа 46м, 3 кабінета, кухня та санвузол. 2/4 поверх. Житловий фонд. Будинок царський: товсті стіни...
19.10.2025
Поверх:
2/4
Загальна
46 м2
25 000 грн
АРЕНДА ОФИСА-ЗДАНИЯ В ЦЕНТРЕ!- г. Киев, Шевченковский район (Центр);- бульвар Т.Г. Шевченко 48; - площадь Галицкая (Победы) - 2 мин;- метро Вокзальная - 6 мин;- метро Университет - 8 мин;- аренда здания: автоно...
Університет
Університет
18.10.2025
Поверх:
1/2
Загальна
150 м2
Житлова
140 м2
52 000 грн
Оренда офісу класу Б у БЦ «Велес» на вул. Глибочицька 17. Площа - 650 м2, висота стелі 4,2 м, дуже світле, просторе приміщення, по всьому периметру - вікна! Якісний ремонт, дві переговорні, 8 кабінетів, 2 оpen-...
17.10.2025
Поверх:
3/3
Загальна
650 м2
400 грн
Популярне на сайті


Одеса


Київ