Здам довгостроково офісне приміщення
Київ, р-н Шевченківський, Пимоненко Николая ул., 13
ID: 5202308
274 796 грн
К-ть приміщень
8
Поверх
3/6
Тип стін
цегла
Загальна площа
450 м2
Стан
житлове
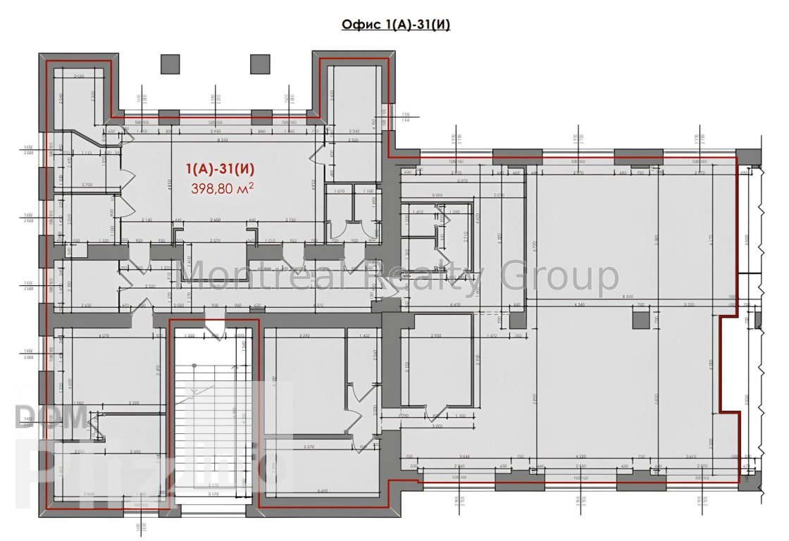
Аренда современного офиса в центре Киева в Бизнес центре класса " В + " по адресу улица Николая Пимоненко. Этаж 3/6 этажного нежилого здания. Полезная площадь офиса 398.8 м2. Арендуемая площадь 446.66 м2 ( 12 % коэффициент BOMA ). Фотографии и планировка соответствуют реальности. Планировка - рабочие зоны + кабинеты/переговорные, кухня, санузлы, кладовки, серверная. Состояния - хороший офисный ремонт. Офис оснащен всем необходимым для комфортной и безопасной работы. Отличная транспортная развязка, в пешей доступности остановка общественого транспорта и станция метро Лукьяновская 10 минут пешком.Вакантность в этом БЦ - 84 м2, 92 м2, 100 м2, 122 м2, 123 м2, 136 м2, 228 м2, 260 м2, 293 м2, 300 м2, 330 м2, 348 м2, 355 м3, 351 м2, 366 м2, 377 м2, 406 м2, 446 м3, 693 м2, 741 м2, 865 м2, 1 103 м2.Оснащения Бизнес Центра:1. Система приточно-вытяжной вентиляции.2. Система кондиционирования.3. Автономная система отопления с терморегуляторами.4. Оптоволоконные линии связи.5. Система контроля доступа.6. Противопожарная система7. Круглосуточная физическая охрана.8. Видеонаблюдение (периметр, холл, лифты, помещения общего пользования, парковка).9. Лифты - 10 шт., фирмы OTIS.10. Большая наземная парковка.11. 2 независимых источника энергии.12. Генератор.Коммерческие условия:Арендная ставка - 14.72 $/м2 с эксплуатации + НДС + коммунальные услуги.Номер оголошення на сайті компанії: RC-128-817-DP.
Оновлене: 03.10.2025
274 796 грн
6 600 $

Радион Попов
посередник
Оновлене: 03.10.2025
Переглянуті
Аренда просторного офиса в центре Киева в Бизнес Центре класса " В " по адресу Бульвар Тараса Шевченко. Этаж 3/9 этажного нежилого здания. Общая площадь офиса 457.3 м2. Фотографии и планировка соответствуют реа...
03.10.2025
Поверх:
3/9
Загальна
460 м2
416 358 грн
Аренда просторного офиса в центре Киева в Бизнес Центре класса " В + " по адресу улица Дегтяревская. Этаж 4/9 этажного нежилого здания. Полезная площадь офиса 401.8 м2. Арендуемая площадь 441.98 м2 ( 10 % коэфф...
03.10.2025
Поверх:
4/9
Загальна
440 м2
239 406 грн
Аренда просторного офиса в центре Киева в Бизнес Центре класса " В + " по адресу улица Дегтяревская. Этаж 5/9 этажного нежилого здания. Полезная площадь офиса 403 м2. Арендуемая площадь 443.3 м2 ( 10 % коэффици...
03.10.2025
Поверх:
5/9
Загальна
440 м2
241 488 грн
Без комиссии! Аренда офиса 460 м2 (нежилой фонд) по улице Глубочицкая. Находится на 2 этаже офисного блока, отдельный презентабельный вход, охрана. Планировка - open space, санузел, кухня, переговорка. Новый оф...
11.02.2022
Поверх:
2/32
Загальна
440 м2
274 796 грн
Популярне на сайті


Одеса


Київ