Продається 1-кімнатна квартира
Полтава, р-н Подільський
ID: 5228900
1 609 780 грн
(45 994 за м2)
Кіл-ть кімнат
1
Поверх
1/10
Тип стін
цегла
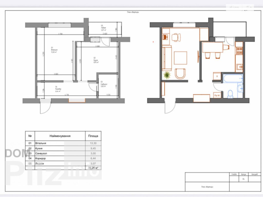
Загальна площа
35 м2
Житлова площа
13 м2
Площа кухні
9 м2
Стан
житлове
Тип нерухомості
Вторинний ринок
Продається світла 1-кімнатна квартира на 1-му поверсі 9-поверхового цегляного будинку в тихому Подільському районі Полтави. Площа: 35, 26 кв.м (житлова 13, 3кв.м, кухня 9, 45 кв.м, засклена лоджія 3, кв.м). Капітальний ремонт 2013 року: маячна гіпсова штукатурка, нова стяжка, плитка (кухня, коридор, ванна), лінолеум 2025 (кімната), шпаклівка/фарбування стін і стель (білий), нові вікна, сантехніка, проводка, чавунні радіатори, ґрати. Лічильники (газ, вода, електрика), дві вбудовані шафи. Затишна, тепла, ідеальна для життя чи оренди. Вікна на південний захід, вид на лісовий масив. Поруч: ринок «Рибний» (5 хв), «АТБ», «Сільпо» (500 м), лікарні (57 хв), річка Ворскла та ліс (715 хв). Зупинка «Рибальська» 4 хв, до центру 5 хв (15, 22). Затишний двір із дитячим майданчиком. Вільна, успадкована в 2024, документи готові Можливий торг. АНГалерея Нерухомості
Створено : 28.09.2025
1 609 780 грн
(45 994 за м2)
39 000 $
(1 114 за м2)

Яна
посередник
Створено : 28.09.2025
Переглянуті
Продаж квартири Полтава. Продається 1-кімнатна квартира, 42.5 кв.м, м. Полтава, район Левада вул О. Бідного Пропонується до продажу світла 1-кімнатна квартира в новому цегляному будинку в затишному районі Левад...
28.09.2025
Кімнат
1
Поверх:
8/10
Загальна
42 м2
Кухня
10 м2
1 857 438 грн
1 комн.квартира в новостройке . Площадь 45кв. Очень просторая с хорошим видом. Не угловая. Продается С хорошей бытовой техникой и мебелью. Просторая гардеробная. Приходите с чемоданом и живете..Вид обєкта: Ново...
28.09.2025
Кімнат
1
Поверх:
4/10
Загальна
45 м2
Кухня
9 м2
2 394 031 грн
Продам 1-кімнатну квартиру в новобудові, Поділ.Продам 1-кімнатну квартиру в новобудові, поверх 9 із 10, із чудовим краєвидом на річку, район Подолу, .Вид обєкта: Новобудова;Тип будинку: Житловий фонд 2011-2020-...
28.09.2025
Кімнат
1
Поверх:
9/10
Загальна
44 м2
Кухня
12 м2
2 270 202 грн
Продаж квартири Полтава.Продається 1-кімнатна квартира, 42.5 кв.м, м. Полтава, район Левада Пропонується до продажу світла 1-кімнатна квартира в новому цегляному будинку в затишному районі Левада, м. Полтава. З...
28.09.2025
Кімнат
1
Поверх:
8/10
Загальна
42 м2
Кухня
10 м2
1 857 438 грн
Популярне на сайті


Одеса


Київ