Продається 2-кімнатна квартира
Полтава, р-н Подільський
ID: 5233957
1 614 591 грн
(32 292 за м2)
Кіл-ть кімнат
2
Поверх
5/10
Тип стін
цегла
Загальна площа
50 м2
Площа кухні
7 м2
Стан
житлове
Тип нерухомості
Вторинний ринок
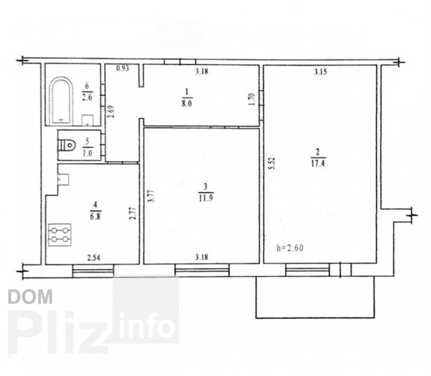
.Продаж 2к Левада середній 5 поверх (із 10-ти), не кутова, тепла, вікна у тихій двір. Порядні спокійні сусіди. Зручне розташування: поряд супермаркети, зупинки, 2 школи, 2 садочка, дитяча лікарня, поліклініка, річка, ліс, парк. Стан задовільний, житловий. Меблі можу залишити. Готова під здачу в оренду або прожиття. Труби замінені на пластикові. Вікна замінені в кухні та спальні. Загальний стан дивіться по відеоогляду, посилання нижче. У власності більше 3-х років, тех. паспорт новий. Готівковий та безготівковий розрахунок.Вид обєкта: Вторинний ринок;Назва ЖК: левада;Тип стін: Панельний;Планування: Роздільна;Cанвузол: Роздільний;Опалення: Централізоване;Ремонт: Житловий стан;Меблювання: Так;Комфорт: Меблі на кухні, Ліфт, Ванна, Балкон, лоджія;Ландшафт (до 1 км.): Парк, Ліс, Річка; АНГалерея Нерухомості
Оновлене: 09.10.2025
1 614 591 грн
(32 292 за м2)
38 900 $
(778 за м2)

Яна
посередник
Оновлене: 09.10.2025
Переглянуті
2-х кімнатна на Подолі, 2 поверх. Продам 2-х кімнатну квартиру на зручному 2-му поверсі, 47 кв.м, в чудовому районі Подолу. Проведений капітальний ремонт в сучасному стилі лофт. Квартира знаходиться в зручном...
09.10.2025
Кімнат
2
Поверх:
2/5
Загальна
47 м2
Кухня
7 м2
2 199 829 грн
Двухкомнатная квартира. Двушка район Климовка 300 м речка дом двух этажей квартира на первом этаже автономное отопление есть возможность достроить балкон Два года назад был заменен газовый котел батареи трубы и...
09.10.2025
Кімнат
2
Поверх:
1/2
Загальна
42 м2
Кухня
6 м2
830 124 грн
2-х кімнатна на Подолі, 2 поверх. Продам 2-х кімнатну квартиру на зручному 2-му поверсі, 47 кв.м, в чудовому районі Подолу. Проведений капітальний ремонт в сучасному стилі лофт. Квартира знаходиться в зручному ...
09.10.2025
Кімнат
2
Поверх:
2/5
Загальна
47 м2
Кухня
7 м2
2 324 347 грн
2 кімнатна на Подолі ,2 поверх. 2 кімнатна на Подолі ,2 поверх після капітального ремонту висота стелі 2.6 .Після ремонту ніхто не проживав, усе нове.До зупинки 1 хвилина.Новий техпаспорт.Прописаних немає,докум...
09.10.2025
Кімнат
2
Поверх:
2/5
Загальна
47 м2
Кухня
7 м2
2 199 829 грн
Популярне на сайті


Одеса


Київ